物件詳細
大阪メトロ長堀鶴見緑地線 『松屋町』駅 徒歩6分
【管理費】727円
大阪市中央区谷町エリア、
谷町六丁目駅徒歩2分の好立地に誕生した新築デザイナーズビルのご紹介です。
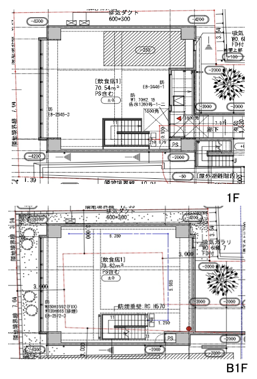
本物件は1階と地下1階のメゾネットタイプとなっており、
約45坪の広さを活かした飲食店やサービス店舗に最適な空間です。
和モダンテイストの洗練されたエントランスは来店動線としても非常に魅力的で、
訪れるお客様に特別感を与える設計となっています。
スケルトン渡しのため、業態に合わせた自由な内装設計が可能で、
こだわりの店舗づくりを実現できます。
また、天井高や空間の広がりを活かした演出が可能で、
ブランド力を高めたい店舗にもおすすめです。
駅近ながら落ち着いたエリアに位置しており、
隠れ家系店舗や高単価業態にも適したロケーションです。
立地・デザイン・自由度を兼ね備えた新築テナントです。
ぜひ一度ご内覧ください。

