谷町六丁目駅徒歩3分 新築デザイナーズビル 1F+B1メゾネット 約45坪 飲食店対応 スケルトン渡し 高級感あるエントランス | 大阪・兵庫・京都で店舗・事務所・居抜き・オフィス・SOHOをお探しなら物件ハンターにお任せください!

フリーワード検索

沿線・駅
市区町村

賃料を選択 賃料を選択

坪数を選択 坪数を選択

業種を選択 業種を選択

複数選択可能

複数選択可能

業種物件一覧

業種物件一覧

Property List物件一覧
表示順:

谷町六丁目駅徒歩3分 新築デザイナーズビル 1F+B1メゾネット 約45坪 飲食店対応 スケルトン渡し 高級感あるエントランス

大阪府大阪市中央区谷町6丁目
大阪メトロ谷町線 『谷町六丁目』駅 徒歩2分

726,000 円(税込)

33,000 円(税込)

45.42 (150.16㎡)

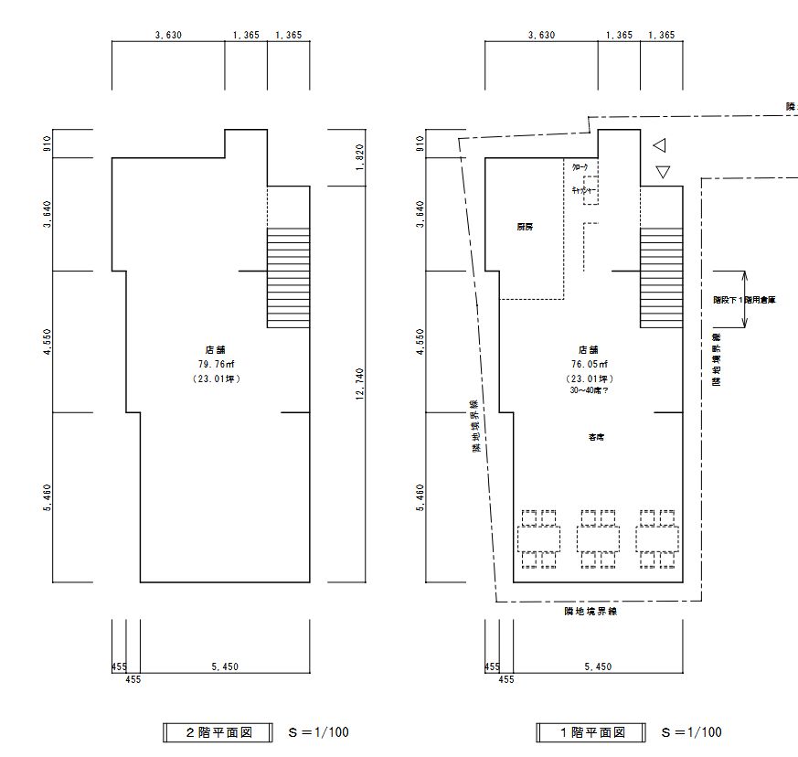
大阪市中央区谷町エリア、 谷町六丁目駅徒歩2分の好立地に誕生した新築デザイナーズビルのご紹介です。 本物件は1階と地下1階のメゾネットタイプとなっており、 約45坪の広さを活かした飲食店やサービス店舗に最適な空間です。 和モダンテイストの洗練されたエントランスは来店動線として…

伊丹エリア 新築ガレージハウス SOHO利用可 電動シャッター付 フリースペース ロフト付きデザイナーズ物件 駐車2台可能

兵庫県伊丹市中野西1丁目
阪急伊丹線 『伊丹』駅 徒歩42分

198,000 円(税込)

0 円(税込)

21.28 (70.24㎡)

伊丹市エリアに誕生した、2024年7月竣工の新築ガレージハウスのご紹介です。 1階には電動シャッター付きのフリースペースを備えており、 車庫・倉庫・作業場など多用途に活用可能。 2階はロフト付きの居住・事務所スペースとなっており、 SOHO・事務所利用にも対応できる柔軟な間取…

南船場エリア ワンフロア約30坪 ピラティススタジオ居抜き 天井高スケルトン風空間 事務所利用も可能 心斎橋徒歩圏

大阪府大阪市中央区南船場4丁目
大阪メトロ長堀鶴見緑地線 『心斎橋』駅 徒歩2分

427,713 円(税込)

14,300 円(税込)

29.91 (98.88㎡)

大阪市中央区南船場エリア、 心斎橋駅徒歩圏内に位置するワンフロアテナントのご紹介です。 約29.91坪の広々とした空間は、ピラティススタジオの居抜き仕様となっており、 スタジオ・美容・サービス業に最適な内装が整っています。 床暖房や大型ミラー、フィッティングルーム、受付カウン…

本町駅徒歩1分 角地視認性良好 約16坪 居抜き相談可 初期費用抑えられるコンパクト店舗 オフィス利用も可能

大阪府大阪市中央区南本町3丁目
大阪メトロ御堂筋線 『本町』駅 徒歩1分

297,000 円(税込)

11,000 円(税込)

16.52 (54.64㎡)

大阪市中央区南本町エリア、 本町駅徒歩1分の好立地に位置するテナントのご紹介です。 駅近かつ角地に位置しており、 視認性の高い立地で集客・認知ともに期待できるポジションです。 約16坪のコンパクトながら使い勝手の良い間取りで、 物販・サービス業・事務所など幅広い用途に対…

新町2丁目 一棟貸し店舗 約157㎡  階建て広々空間 物販 サロン 事務所に最適 西大橋駅徒歩3分 視認性良好

大阪府大阪市西区新町2丁目
大阪メトロ長堀鶴見緑地線 『西長堀』駅 徒歩3分

462,000 円(税込)

0 円(税込)

47.79 (157.71㎡)

大阪市西区新町2丁目、 西大橋駅徒歩3分の好立地に位置する一棟貸し店舗のご紹介です。 本物件は1棟貸しのため、他テナントを気にせず自由度の高い運営が可能です。 延べ約157.71㎡の広さがあり、1階・2階・3階とフロアを分けて活用できるため、 物販・サロン・事務所など幅広い用…

南船場 新町エリア 1階路面店舗 飲食店居抜き 重飲食相談可 カウンター内装あり 即営業可 希少物件

大阪府大阪市西区新町1丁目
大阪メトロ四つ橋線 『四ツ橋』駅 徒歩3分

327,800 円(税込)

30,250 円(税込)

11 (36.3㎡)

大阪市西区新町1丁目、 南船場エリア至近の好立地に位置する1階路面の飲食店居抜き物件のご紹介です。 人通りのあるエリアに位置し、集客力の高い立地が魅力です。 店内はカウンターを中心とした飲食店内装が残っており、 初期費用を抑えてスピーディーな開業が可能です。 さらに本物…

福島駅徒歩1分 BAR居抜き 2階3階まとめ貸し 約30坪 即営業可 カウンター内装あり 飲食店向き 福島エリア

大阪府大阪市福島区福島5丁目
阪神本線 『福島』駅 徒歩1分

352,000 円(税込)

0 円(税込)

9.16 (30.24㎡)

大阪市福島区福島5丁目、 福島駅徒歩1分の好立地に位置する店舗物件のご紹介です。 駅近で飲食店が集まる人気エリアにあり、集客力の高い立地が魅力です。 本物件は2階・3階のまとめ貸しで、 延べ約30.24坪のゆとりある空間となっております。 現状BAR営業中の居抜き物件の…

五条駅徒歩2分 1階路面店舗 業種不問 約18坪 2025年リニューアル 重飲食相談可 取引町通り沿い 内装費用一部貸主負担キャンペーン中

京都府京都市下京区諏訪町通五条上る高砂町
京都市営地下鉄烏丸線 『五条』駅 徒歩2分

398,000 円(税込)

0 円(税込)

18.15 (60.01㎡)

都市下京区五条通り至近、 地下鉄烏丸線「五条駅」徒歩2分の好立地に位置する1階路面店舗の募集です。 取引町通りに面した視認性の高い立地で、集客力のあるエリアとなっております。 約60.01㎡(約18坪)の使いやすいサイズ感で、 物販・サロン・カフェはもちろん、重飲食も相談可能…

肥後橋駅徒歩3分 デザイナーズコンクリートビル 3階店舗 約17坪 天井高スケルトン おしゃれ系サロン カフェ ギャラリーに最適 中之島

大阪府大阪市西区土佐堀1丁目
大阪メトロ四つ橋線 『肥後橋』駅 徒歩3分

313,500 円(税込)

38,500 円(税込)

17.63 (58.29㎡)

大阪市西区土佐堀1丁目、 中之島エリアに位置する洗練されたデザイナーズビルの3階区画のご紹介です。 コンクリート打ち放しの無機質でスタイリッシュな空間は、 サロンやカフェ、ギャラリーなど感度の高い業態に最適です。 約17.63坪の使いやすいサイズ感に加え、 スケルトン仕…

堺筋本町駅徒歩1分 1階路面店舗 居抜き風内装あり 約64㎡ 即営業可 飲食相談可能 南本町

大阪府大阪市中央区南本町1丁目
大阪メトロ中央線 『堺筋本町』駅 徒歩1分

440,000 円(税込)

22,000 円(税込)

19.39 (64㎡)

大阪市中央区南本町1丁目、 堺筋本町駅徒歩1分の好立地に位置する1階路面店舗の募集です。 駅近立地で人通りも見込めるエリアのため、 飲食店をはじめ幅広い業種におすすめできる物件です。 店内は飲食店仕様の内装が残っており、 初期費用を抑えてスピード出店が可能です。 …

桜川3丁目 美容室兼飲食店居抜き店舗 1階路面角地で視認性良好!

大阪府大阪市浪速区桜川3丁目
大阪メトロ千日前線 『桜川』駅 徒歩3分

296,230 円(税込)

29,590 円(税込)

26.93 (89.04㎡)

「桜川駅」徒歩3分 あみだ池筋に面する立地 9階建てマンションの1階店舗区画 約26.93坪 現況:美容室兼飲食店営業中 居抜き状態での引き渡しとなります。 造作譲渡代770万円(税込) 【美容室】 セット面×4 シャンプー台×2 エアコン 【飲食店】 …

大阪梅田 大阪駅前第2ビル 1階路面角店舗 約227坪 大型区画 北新地駅徒歩1分 商業向け

大阪府大阪市北区梅田1丁目
JR東西線 『北新地』駅 徒歩1分

6,600,000 円(税込)

0 円(税込)

227.39 (750.38㎡)

大阪市北区梅田1丁目「大阪駅前第2ビル」1階の路面店舗区画の募集です。 JR「北新地」駅徒歩1分、各線「大阪・梅田」駅も徒歩圏内という 大阪屈指のターミナル立地に位置しています。 本物件は1階角地の大型区画となっており、 視認性・導線ともに優れたロケーションです。 約2…
06-7777-7421
06-7777-7421
受付 9:00〜17:00日曜日・祝日定休
メールお問い合わせ
メールお問い合わせ
LINEお問い合わせ
LINEお問い合わせ

Page top

Page top