谷町六丁目駅徒歩1分 谷町筋に... | 大阪で店舗・事務所・居抜き・オフィス・SOHOをお探しなら物件ハンターにお任せください!

Detail物件詳細
物件番号
27484
谷町六丁目駅徒歩1分 谷町筋に面する新築マンション 1階店舗区画
Loading
賃料
275,000円(税込)
共益費
0円(税込)
敷金 / 礼金
0円 / 2ヶ月
保証金
0
解約引
-
造作譲渡金
-
物件番号
27484

    物件詳細

    物件公開日
    2026年03月19日
    築年月
    2025年08月
    物件種別
    店舗
    所在地
    大阪府大阪市中央区谷町6丁目
    アクセス
    大阪メトロ谷町線 『谷町六丁目』駅 徒歩1分
    大阪メトロ長堀鶴見緑地線 『松屋町』駅 徒歩8分
    坪単価
    【賃料】21,688円
    【管理費】0円
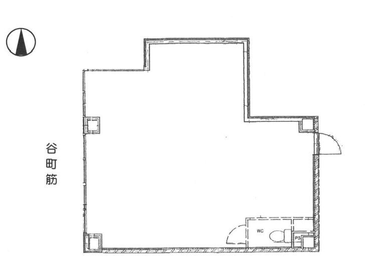
    坪数
    12.68坪 (41.92㎡)
    建物構造
    鉄骨造 / 8階建 (所在階)1階
    現況
    空室
    引渡し時期
    即日
    取引態様
    仲介(媒介)
    備考
    #一階路面#美容関係#物販関係#アパレル#学校・スクール#クリニック&医療向け#ショールーム#新築・築浅

    「谷町六丁目駅」徒歩1分

    谷町筋沿いの好立地物件

    2025年8月竣工の新築マンション

    1階店舗区画 約12.68坪

    スケルトンでの引き渡しとなります。

    飲食店はカフェ程度までの軽飲食店は相談可。

    その他業種はご相談ください。

    お問い合わせお待ちしております。

    06-7777-7421
    06-7777-7421
    受付 10:00〜18:00日曜日・祝日定休
    メールお問い合わせ
    メールお問い合わせ
    LINEお問い合わせ
    LINEお問い合わせ

    Page top

    Page top

    LINEで物件お問い合わせ

    「LINEお問い合わせ」ボタンを押すと、トーク画面が開きますので、以下のお問い合わせ番号をコピーして送信してください。
    お電話番号も一緒にお送り頂くとより迅速な対応が可能です。

    LINEお問い合わせ
    LINEお問い合わせ

    ※初回のみ、弊社を「友だちリスト」に追加してください。

    CLOSE