物件詳細
大阪メトロ長堀鶴見緑地線 『西長堀』駅 徒歩3分
【管理費】2,200円
大阪市西区南堀江3丁目に位置する店舗・事務所区画の募集です。
大阪メトロ長堀鶴見緑地線・千日前線「西長堀」駅徒歩30秒という
駅近の好立地に位置しています。
新なにわ筋沿いの角地ビルのため視認性も高く、
来店型ビジネスにも適したロケーションです。
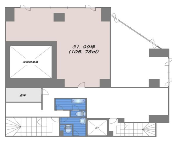
約105㎡(約31坪)の広さがあり、事務所利用はもちろん
サービス店舗やスクールなど幅広い用途でご検討いただけます。
2019年にビル全体の改装が行われており、
共用部や外観も整ったきれいなビルとなっています。
南堀江エリアは人気の高いエリアで、
オフィスやショップが混在する活気のある街並みが魅力です。
駅近で利便性の高い物件のため、
事務所や店舗をお探しの方はぜひ一度ご検討ください。

