物件詳細
大阪メトロ長堀鶴見緑地線 『西長堀』駅 徒歩3分
【管理費】2,200円
大阪市西区南堀江3丁目に位置する店舗・事務所区画の募集です。
大阪メトロ長堀鶴見緑地線・千日前線「西長堀」駅より徒歩30秒と駅近の好立地。
新なにわ筋沿いの角地ビルのため視認性が高く、
来店型の事業にも適したロケーションです。
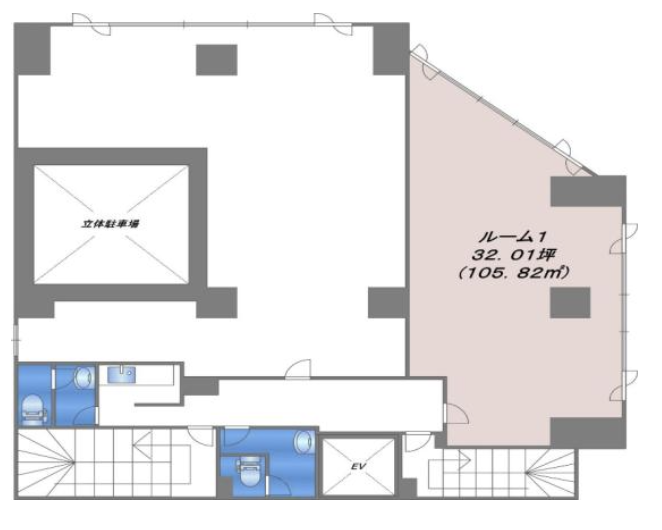
約105㎡(約32坪)の広さがあり、事務所利用はもちろん
サービス店舗やスクールなど様々な用途でご検討いただけます。
2019年にはビル全体の改装が行われており、
共用部や室内もきれいに整備された建物です。
南堀江エリアはカフェやショップ、オフィスが混在する人気のエリアで、
利便性と集客性の両方を兼ね備えた立地となっています。
駅近で視認性の高い角地ビルのため、
店舗や事務所をお探しの方にはおすすめの物件です。

