蒲生四丁目 2026年2月完成... | 大阪で店舗・事務所・居抜き・オフィス・SOHOをお探しなら物件ハンターにお任せください!

Detail物件詳細
物件番号
26842
蒲生四丁目 2026年2月完成の新築テナントビル 1階から7階まで全区画募集中!
Loading
賃料
248,600円(税込)
共益費
7,700円(税込)
敷金 / 礼金
2ヶ月 / 3ヶ月
保証金
0
解約引
-
造作譲渡金
-
物件番号
26842

    物件詳細

    物件公開日
    2026年02月06日
    築年月
    2026年02月
    物件種別
    店舗・事務所
    所在地
    大阪府大阪市城東区中央1丁目
    アクセス
    大阪メトロ長堀鶴見緑地線 『蒲生四丁目』駅 徒歩4分
    大阪環状線 『京橋』駅 徒歩14分
    坪単価
    【賃料】17,027円
    【管理費】527円
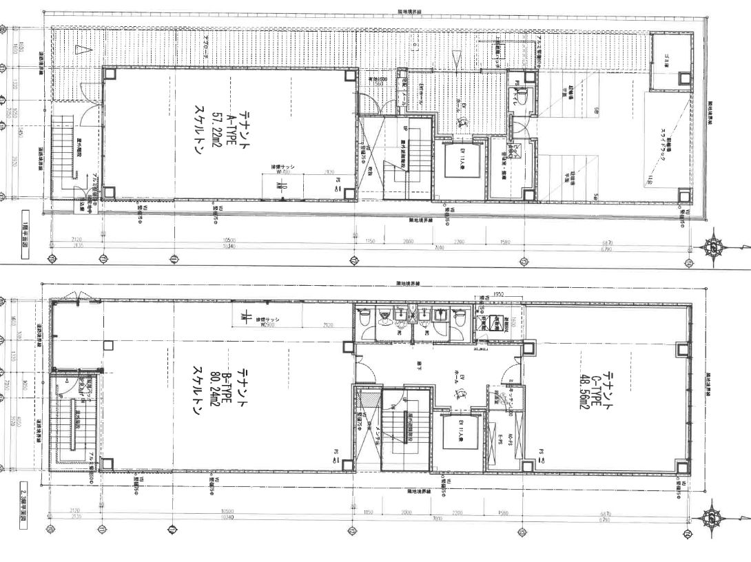
    坪数
    14.6坪 (48.26㎡)
    建物構造
    鉄骨造 / 7階建 (所在階)6階
    現況
    空室
    引渡し時期
    即日
    取引態様
    仲介(媒介)
    備考
    #オフィス#デザイナーズ#飲食関係#美容関係#物販関係#Bar&夜系#大通沿い#アパレル#ペット関係#学校・スクール#クリニック&医療向け#ショールーム#眺望重視#新築・築浅

    1階 スケルトン貸し
    2.3階 スケルトン貸し
    4.5階 事務所仕様OAフロア仕上げ済み
    6.7階 スケルトン貸し

    共用部分男女別トイレ、給湯室有

    各室内に給排水、都市ガス、電気引込有

    天井高3m超

    飲食店、クリニック、事務所、ジム、美容室etc..

    業種は幅広くご相談可能です!

    お問い合わせお待ちしております。

    06-7777-7421
    06-7777-7421
    受付 10:00〜18:00日曜日・祝日定休
    メールお問い合わせ
    メールお問い合わせ
    LINEお問い合わせ
    LINEお問い合わせ

    Page top

    Page top

    LINEで物件お問い合わせ

    「LINEお問い合わせ」ボタンを押すと、トーク画面が開きますので、以下のお問い合わせ番号をコピーして送信してください。
    お電話番号も一緒にお送り頂くとより迅速な対応が可能です。

    LINEお問い合わせ
    LINEお問い合わせ

    ※初回のみ、弊社を「友だちリスト」に追加してください。

    CLOSE