物件詳細
大阪メトロ御堂筋線 『淀屋橋』駅 徒歩5分
【管理費】4,902円
「実は、地下がちょうどいい。」
そう思える人に、刺さる物件です。
四つ橋線「肥後橋」駅から徒歩1分。
都心立地ながら落ち着いた江戸堀エリアにある、
地下1階・スケルトン店舗の募集です。
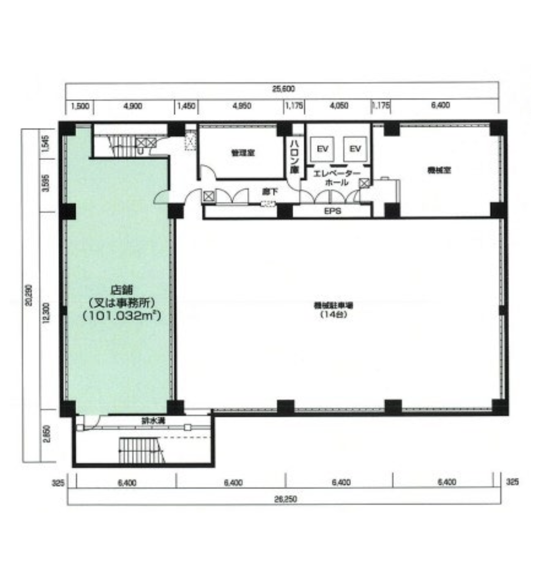
専有面積は約30坪。
天井高もあり、スタジオ、サロン、スクール、予約制のサービス店舗など、
“中に入った人向け”の業態と相性のいい空間です。
現況はスケルトンのため、
内装はゼロから自由にプランニング可能。
世界観をしっかり作りたい方には、むしろ好条件です。
業種は応相談。
飲食・無人営業・24時間営業は不可ですが、
落ち着いた業態でじっくりやりたい方にはフィットします。
派手な立地ではないけれど、
アクセスと環境のバランスはかなり良し。
「わかる人がちゃんと来る」
そんな拠点を探しているなら、一度見てほしい一室です。

