物件詳細
大和路線 『JR難波』駅 徒歩7分
【管理費】0円
南堀江1丁目
オレンジストリートから1本南側の通りに面する立地
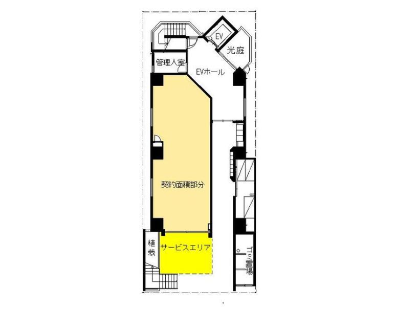
14階建てマンションの1階路面店舗区画
専有部約20坪 + 前面テラススペース付き
室内残置物あり(トイレ・天井照明・ダミー監視カメラ)
業種は重飲食・福祉関係NG
カフェや物販店舗等の業種にいかがでしょうか!
※本物件は、なにわ筋線都市計画事業の区域内です。
将来都市計画事業が実施された場合、建替制限や立退き等が生じる可能性がございます。
お問い合わせお待ちしております!

