物件詳細
沿線を選択
【管理費】0円
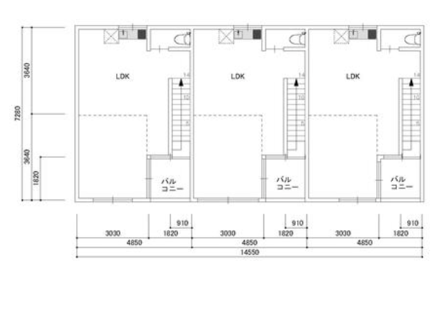
2025年10月竣工の築浅ガレージハウス物件。
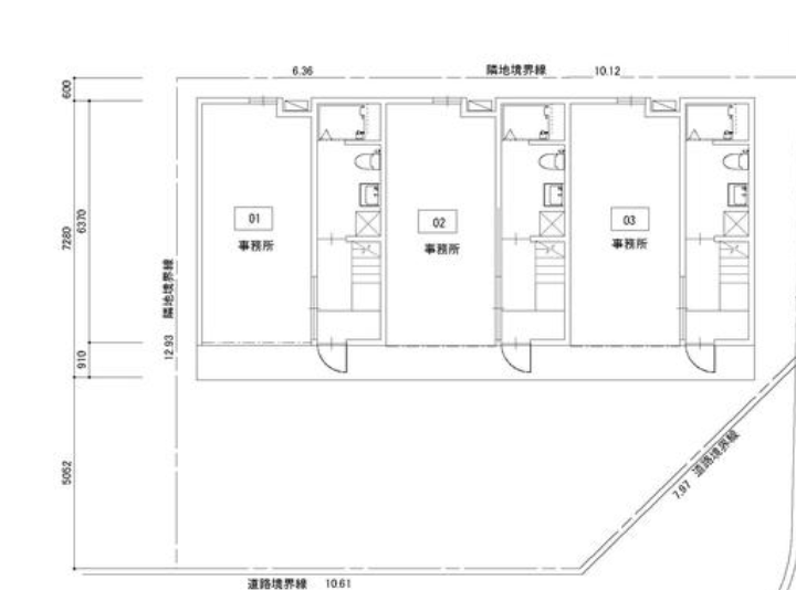
1階は電動シャッター付きフリースペース、2階は事務所仕様で、SOHO・倉庫・事務所利用が可能です。
1階フリースペースはガレージ利用もでき、資材保管や軽作業スペースとしても活用可能。
前面には駐車スペースがあり、車両利用のある業種にも使いやすい設計です。
2階にはロフト・バルコニー・屋上付きの事務所空間を確保。
作業と執務をしっかり分けたい方にもおすすめです。
府道16号線沿いで視認性が高く、鳥飼仁和寺大橋にも近い立地。
大阪市内・北摂・枚方方面へのアクセスも良好で、拠点利用に適した物件です。

