「本町駅」徒歩2分 阿波座公園... | 大阪で店舗・事務所・居抜き・オフィス・SOHOをお探しなら物件ハンターにお任せください!

Detail物件詳細
物件番号
26521
「本町駅」徒歩2分 阿波座公園前の好立地 デザイナーズオフィス
Loading
賃料
110,000円(税込)
共益費
0円(税込)
敷金 / 礼金
0円 / 0
保証金
3ヶ月
解約引
3年以上全額返還
造作譲渡金
-
物件番号
26521

    物件詳細

    物件公開日
    2026年01月14日
    築年月
    1965年05月
    物件種別
    店舗・事務所
    所在地
    大阪府大阪市西区阿波座1丁目
    アクセス
    大阪メトロ四つ橋線 『本町』駅 徒歩2分
    大阪メトロ四つ橋線 『四ツ橋』駅 徒歩10分
    坪単価
    【賃料】10,092円
    【管理費】0円
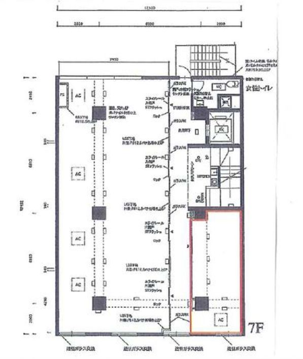
    坪数
    10.9坪 (36.1㎡)
    建物構造
    RC / 7階建 (所在階)7階
    現況
    賃貸中
    引渡し時期
    相談
    取引態様
    仲介(媒介)
    備考
    #オフィス#デザイナーズ#美容関係#居抜き物件#リノベーション#レトロ物件

    「本町駅」徒歩2分

    阿波座公園目の前のロケーション

    レンガ調のレトロでお洒落な外観のビル

    7階区画 募集中 約10坪

    コンクリート打ちっぱ白塗りのデザイナーズ仕様

    業種はクリエイター系のオフィス希望ですが、

    一部店舗使用も相談可能です。

    2029年12月までの定期借家契約となります。

    お問い合わせお待ちしております。

    06-6786-8690
    06-6786-8690
    受付 10:00〜18:00日曜日・祝日定休
    メールお問い合わせ
    メールお問い合わせ
    LINEお問い合わせ
    LINEお問い合わせ

    Page top

    Page top

    LINEで物件お問い合わせ

    「LINEお問い合わせ」ボタンを押すと、トーク画面が開きますので、以下のお問い合わせ番号をコピーして送信してください。
    お電話番号も一緒にお送り頂くとより迅速な対応が可能です。

    LINEお問い合わせ
    LINEお問い合わせ

    ※初回のみ、弊社を「友だちリスト」に追加してください。

    CLOSE