物件詳細
大阪メトロ中央線 『堺筋本町』駅 徒歩1分
【管理費】0円
堺筋本町駅から徒歩2分。
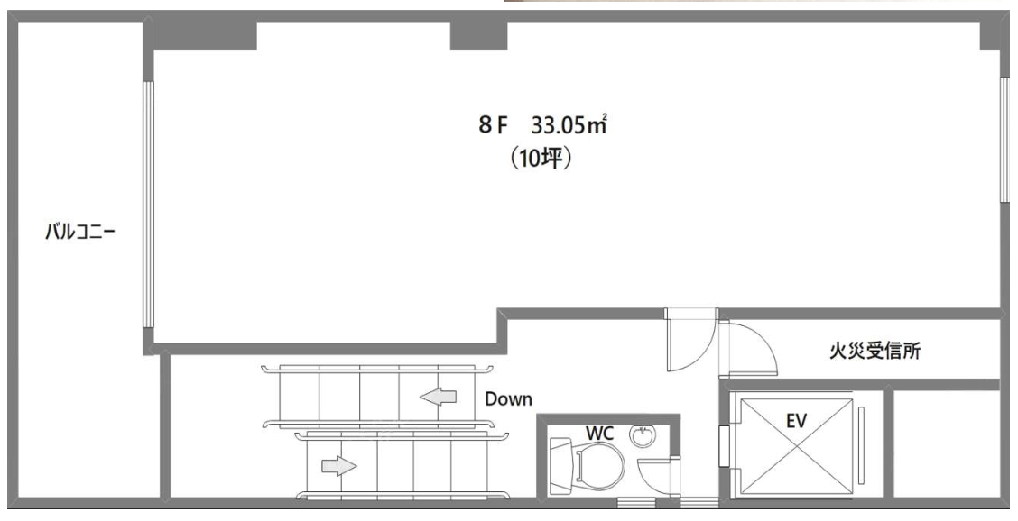
最上階・1フロア1テナントの独立性が高いオフィスです。
少人数向けののコンパクトな室内は、
スタートアップや個人事務所、少人数オフィスにおすすめ。
バルコニー付きで、最上階ならではの明るさと開放感も魅力です。
2007年にリニューアル工事、2020年には外壁塗装済み。
24時間利用可能で、業務時間に縛られず柔軟な働き方が可能です。
「アクセス」「独立性」「使いやすさ」を
重視される方にぜひ一度ご内覧いただきたい物件です。

