【本町・淀屋橋エリア】美容クリ... | 大阪で店舗・事務所・居抜き・オフィス・SOHOをお探しなら物件ハンターにお任せください!

Detail物件詳細
物件番号
26364
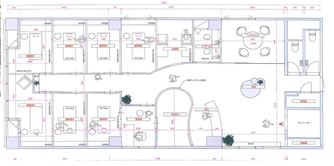
【本町・淀屋橋エリア】美容クリニック居抜き物件 169㎡ 約51坪 ワンフロア1室
Loading
賃料
715,000円(税込)
共益費
0円(税込)
敷金 / 礼金
0円 / 2ヶ月
保証金
2,145,000
解約引
-
造作譲渡金
-
物件番号
26364

    物件詳細

    物件公開日
    2025年12月17日
    築年月
    1984年03月
    物件種別
    店舗・事務所
    所在地
    大阪府大阪市中央区淡路町3丁目
    アクセス
    大阪メトロ御堂筋線 『本町』駅 徒歩4分
    大阪メトロ御堂筋線 『淀屋橋』駅 徒歩6分
    坪単価
    【賃料】13,892円
    【管理費】0円
    坪数
    51.47坪 (169.88㎡)
    建物構造
    SRC / 7階建  (所在階)4階
    現況
    空室
    引渡し時期
    即時
    取引態様
    仲介(媒介)
    備考
    #美容関係#居抜き物件#物販関係#アパレル#学校・スクール#クリニック&医療向け

    大阪市中央区淡路町3丁目

    本町・淀屋橋エリア 歩いてすぐの好立地

    専有面積 約169㎡ 51坪 ワンフロア1室仕様

    現在は美容クリニックの内装が残っております

    そのままクリニックとしての使用もできますが、内装を活かして

    その他業種も対応できそうです!!

    まずはお問い合わせお待ちしております!!

    06-7777-7421
    06-7777-7421
    受付 10:00〜18:00日曜日・祝日定休
    メールお問い合わせ
    メールお問い合わせ
    LINEお問い合わせ
    LINEお問い合わせ

    Page top

    Page top

    LINEで物件お問い合わせ

    「LINEお問い合わせ」ボタンを押すと、トーク画面が開きますので、以下のお問い合わせ番号をコピーして送信してください。
    お電話番号も一緒にお送り頂くとより迅速な対応が可能です。

    LINEお問い合わせ
    LINEお問い合わせ

    ※初回のみ、弊社を「友だちリスト」に追加してください。

    CLOSE