堺筋本町エリア 1階路面店舗&... | 大阪で店舗・事務所・居抜き・オフィス・SOHOをお探しなら物件ハンターにお任せください!

Detail物件詳細
物件番号
25910
堺筋本町エリア 1階路面店舗&1階奥事務所セット貸し 延床面積約25坪
Loading
賃料
328,350円(税込)
共益費
46,200円(税込)
敷金 / 礼金
0円 / 0
保証金
3,400,000
解約引
1,980,000円
造作譲渡金
-
物件番号
25910

    物件詳細

    物件公開日
    2025年12月01日
    築年月
    1979年01月
    物件種別
    店舗・事務所
    所在地
    大阪府大阪市中央区北久宝寺町2丁目
    アクセス
    大阪メトロ堺筋線 『堺筋本町』駅 徒歩3分
    大阪メトロ御堂筋線 『本町』駅 徒歩9分
    坪単価
    【賃料】13,134円
    【管理費】1,848円
    坪数
    25坪 (82.64㎡)
    建物構造
    SRC / 9階建 (所在階)1階
    現況
    空室
    引渡し時期
    即日
    取引態様
    仲介(媒介)
    備考
    #一階路面#オフィス#美容関係#物販関係#大通沿い#アパレル#学校・スクール#ショールーム

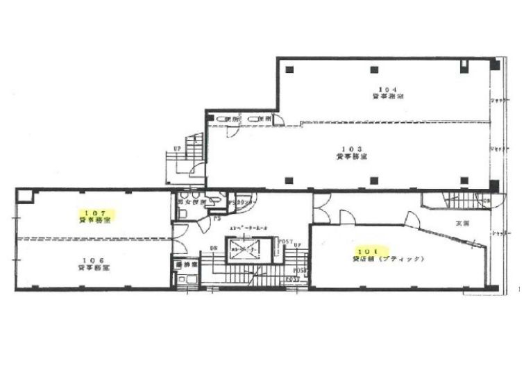
    堺筋本町エリア

    堺筋に面する好立地物件

    1階路面店舗:15坪

    1階奥事務所:10坪

    セット貸し物件

    前回は不動産会社が入居しておりました。

    専有部内に給排水設備の引込無し

    飲食店等水回りの必要の業種は不可です。

    お問い合わせお待ちしております!

    06-6786-8690
    06-6786-8690
    受付 10:00〜18:00日曜日・祝日定休
    メールお問い合わせ
    メールお問い合わせ
    LINEお問い合わせ
    LINEお問い合わせ

    Page top

    Page top

    LINEで物件お問い合わせ

    「LINEお問い合わせ」ボタンを押すと、トーク画面が開きますので、以下のお問い合わせ番号をコピーして送信してください。
    お電話番号も一緒にお送り頂くとより迅速な対応が可能です。

    LINEお問い合わせ
    LINEお問い合わせ

    ※初回のみ、弊社を「友だちリスト」に追加してください。

    CLOSE