天満2丁目 角地1階路面店舗 ... | 大阪で店舗・事務所・居抜き・オフィス・SOHOをお探しなら物件ハンターにお任せください!

Detail物件詳細
物件番号
25896
天満2丁目 角地1階路面店舗 約21坪 現況スケルトン
Loading
賃料
385,000円(税込)
共益費
0円(税込)
敷金 / 礼金
2ヶ月 / 2ヶ月
保証金
0
解約引
-
造作譲渡金
-
物件番号
25896

    物件詳細

    物件公開日
    2025年11月29日
    築年月
    2008年03月
    物件種別
    店舗
    所在地
    大阪府大阪市北区天満2丁目
    アクセス
    大阪メトロ谷町線 『南森町』駅 徒歩7分
    大阪メトロ谷町線 『天満橋』駅 徒歩10分
    坪単価
    【賃料】18,333円
    【管理費】0円
    坪数
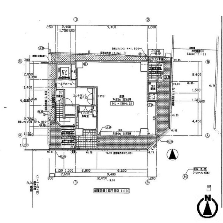
    21坪 (69.36㎡)
    建物構造
    RC / 7階建 (所在階)1階
    現況
    空室
    引渡し時期
    即日
    取引態様
    仲介(媒介)
    備考
    #一階路面#美容関係#物販関係#アパレル#学校・スクール#クリニック&医療向け#ショールーム

    天満2丁目

    南森町と天満橋の間に位置する、静かで落ち着きのある街並み。

    7階建てマンションの1階店舗区画 約21坪

    角地で間口が広く視認性良好

    引き渡し状態はスケルトンです。

    飲食業は不可です。

    その他業種はご相談ください。

    お問い合わせお待ちしております。

    06-6786-8690
    06-6786-8690
    受付 10:00〜18:00日曜日・祝日定休
    メールお問い合わせ
    メールお問い合わせ
    LINEお問い合わせ
    LINEお問い合わせ

    Page top

    Page top

    LINEで物件お問い合わせ

    「LINEお問い合わせ」ボタンを押すと、トーク画面が開きますので、以下のお問い合わせ番号をコピーして送信してください。
    お電話番号も一緒にお送り頂くとより迅速な対応が可能です。

    LINEお問い合わせ
    LINEお問い合わせ

    ※初回のみ、弊社を「友だちリスト」に追加してください。

    CLOSE