アメ村 西心斎橋2丁目 重飲食... | 大阪で店舗・事務所・居抜き・オフィス・SOHOをお探しなら物件ハンターにお任せください!

Detail物件詳細
物件番号
25776
アメ村 西心斎橋2丁目 重飲食も可能な築浅ビルの5F!! 約18坪 心斎橋・難波駅まで歩いてすぐの好立地!
Loading
賃料
495,000円(税込)
共益費
110,000円(税込)
敷金 / 礼金
2,250,000円 / 2,475,000円(税込)
保証金
0
解約引
-
造作譲渡金
-
物件番号
25776

    物件詳細

    物件公開日
    2025年11月25日
    築年月
    2024年06月
    物件種別
    店舗・事務所
    所在地
    大阪府大阪市中央区西心斎橋2丁目
    アクセス
    大阪メトロ千日前線 『なんば』駅 徒歩3分
    大阪メトロ御堂筋線 『心斎橋』駅 徒歩5分
    坪単価
    【賃料】26,527円
    【管理費】5,895円
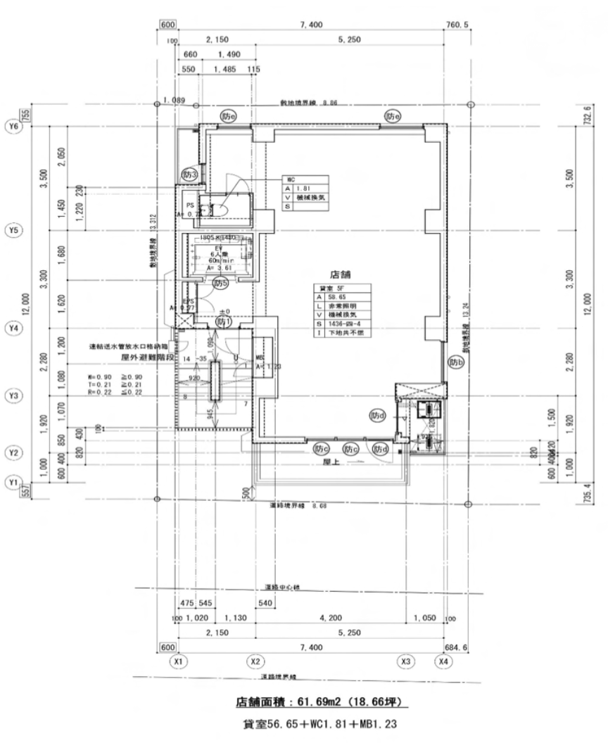
    坪数
    18.66坪 (61.69㎡)
    建物構造
    RC / 7階建 5階部分
    現況
    空室
    引渡し時期
    即日
    取引態様
    仲介(媒介)
    備考
    #一等地#デザイナーズ#飲食関係#美容関係#物販関係#Bar&夜系#アパレル#クリニック&医療向け#ショールーム#ワンフロア

    大阪市中央区西心斎橋2丁目

    人気のアメ村界隈の飲食が集まるメインエリア

    外観がコンクリートのおしゃれな築浅ビルの5階ワンフロア

    重飲食も対応可能なこのビルは昼夜問わずにかなり人通り賑わう立地です。

    テナント内は約18坪の使いやすいハコの大きさ

    重飲食から軽飲食、はたまたそれ以外の業種の多数相談できます

    立地がいいのでモーニング、ランチからディナーまで幅広く対応できると思いますよ!

    06-7777-7421
    06-7777-7421
    受付 10:00〜18:00日曜日・祝日定休
    メールお問い合わせ
    メールお問い合わせ
    LINEお問い合わせ
    LINEお問い合わせ

    Page top

    Page top

    LINEで物件お問い合わせ

    「LINEお問い合わせ」ボタンを押すと、トーク画面が開きますので、以下のお問い合わせ番号をコピーして送信してください。
    お電話番号も一緒にお送り頂くとより迅速な対応が可能です。

    LINEお問い合わせ
    LINEお問い合わせ

    ※初回のみ、弊社を「友だちリスト」に追加してください。

    CLOSE