【福島エリア】2号線沿いに面す... | 大阪で店舗・事務所・居抜き・オフィス・SOHOをお探しなら物件ハンターにお任せください!

Detail物件詳細
物件番号
25649
【福島エリア】2号線沿いに面する1階路面店舗 飲食店相談可能 約14坪 福島駅徒歩すぐの立地!
Loading
賃料
495,000円(税込)
共益費
0円(税込)
敷金 / 礼金
1ヶ月 / 4ヶ月
保証金
0
解約引
-
造作譲渡金
-
物件番号
25649

    物件詳細

    物件公開日
    2025年11月19日
    築年月
    1988年06月
    物件種別
    店舗・事務所
    所在地
    大阪府大阪市福島区福島5丁目
    アクセス
    阪神本線 『福島』駅 徒歩1分
    JR東西線 『新福島』駅 徒歩4分
    坪単価
    【賃料】35,357円
    【管理費】0円
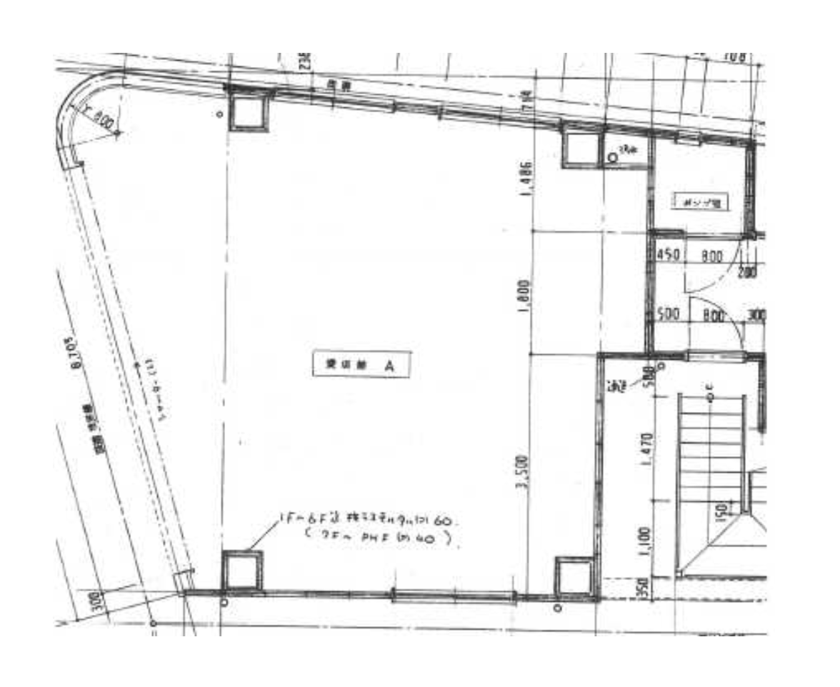
    坪数
    14坪 (46.20㎡)
    建物構造
    木造 / 2階建 1階部分
    現況
    空室
    引渡し時期
    即日
    取引態様
    仲介(媒介)
    備考
    #一階路面#飲食関係#美容関係#物販関係#Bar&夜系#大通沿い#アパレル#ペット関係#学校・スクール#大型ロードサイド

    大阪市福島区福島5丁目

    2号線沿いに面する1階路面店舗 約14坪

    現在までハンコ屋さんが盛業しておりました

    飲食関係も相談可能

    その他物販関係から事務所系まで幅広く相談できます

    ますはお問い合わせください

    お待ちいたしております

    06-7777-7421
    06-7777-7421
    受付 10:00〜18:00日曜日・祝日定休
    メールお問い合わせ
    メールお問い合わせ
    LINEお問い合わせ
    LINEお問い合わせ

    Page top

    Page top

    LINEで物件お問い合わせ

    「LINEお問い合わせ」ボタンを押すと、トーク画面が開きますので、以下のお問い合わせ番号をコピーして送信してください。
    お電話番号も一緒にお送り頂くとより迅速な対応が可能です。

    LINEお問い合わせ
    LINEお問い合わせ

    ※初回のみ、弊社を「友だちリスト」に追加してください。

    CLOSE