梅田エリア THE路地裏テナン... | 大阪で店舗・事務所・居抜き・オフィス・SOHOをお探しなら物件ハンターにお任せください!

Detail物件詳細
物件番号
25628
梅田エリア THE路地裏テナント 飲食店もOK かなりマニアックな小箱テナントです!!
Loading
賃料
165,000円(税込)
共益費
0円(税込)
敷金 / 礼金
0円 / 0
保証金
1,000,000
解約引
年数スライド方式
造作譲渡金
-
物件番号
25628

    物件詳細

    物件公開日
    2025年11月18日
    築年月
    1959年11月
    物件種別
    店舗・事務所
    所在地
    大阪府大阪市北区兎我野町
    アクセス
    大阪メトロ谷町線 『東梅田』駅 徒歩3分
    阪神本線 『大阪梅田』駅 徒歩7分
    坪単価
    【賃料】13,033円
    【管理費】0円
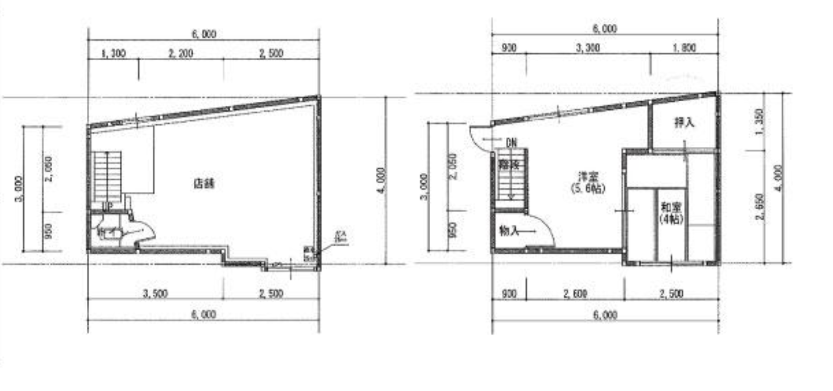
    坪数
    12.66坪 (41.77㎡)
    建物構造
    木造 / 2階建 1棟貸し
    現況
    空室
    引渡し時期
    即日
    取引態様
    仲介(媒介)
    備考
    #一階路面#飲食関係#居抜き物件#物販関係#Bar&夜系#レトロ物件#古民家#隠れ家物件

    大阪市北区

    梅田・兎我野町エリア

    路地裏1階 約延べ12坪

    1階6坪 2階も同じく6坪ほど

    かなりマニアックな路地裏物件

    こんなマニア物件探し求めてた方は是非!!!!

    06-7777-7421
    06-7777-7421
    受付 10:00〜18:00日曜日・祝日定休
    メールお問い合わせ
    メールお問い合わせ
    LINEお問い合わせ
    LINEお問い合わせ

    Page top

    Page top

    LINEで物件お問い合わせ

    「LINEお問い合わせ」ボタンを押すと、トーク画面が開きますので、以下のお問い合わせ番号をコピーして送信してください。
    お電話番号も一緒にお送り頂くとより迅速な対応が可能です。

    LINEお問い合わせ
    LINEお問い合わせ

    ※初回のみ、弊社を「友だちリスト」に追加してください。

    CLOSE