松屋町駅1分! 4階建て一棟貸... | 大阪で店舗・事務所・居抜き・オフィス・SOHOをお探しなら物件ハンターにお任せください!

Detail物件詳細
物件番号
25609
松屋町駅1分! 4階建て一棟貸倉庫・事務所 賃料坪単価3,652円!
Loading
賃料
715,000円(税込)
共益費
0円(税込)
敷金 / 礼金
2ヶ月 / 2ヶ月
保証金
0
解約引
-
造作譲渡金
-
物件番号
25609

    物件詳細

    物件公開日
    2025年11月17日
    築年月
    1961年01月
    物件種別
    事務所・倉庫
    所在地
    大阪府大阪市中央区松屋町
    アクセス
    大阪メトロ長堀鶴見緑地線 『松屋町』駅 徒歩1分
    大阪メトロ堺筋線 『堺筋本町』駅 徒歩7分
    坪単価
    【賃料】3,652円
    【管理費】0円
    坪数
    195.8坪 (647.28㎡)
    建物構造
    鉄骨造 / 4階建 1棟貸
    現況
    空室
    引渡し時期
    即日
    取引態様
    仲介(媒介)
    備考
    #一階路面#オフィス#1棟貸し

    「松屋町駅」徒歩1分の立地

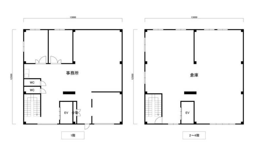
    4階建て一棟貸の倉庫・事務所

    延床面積:647.28㎡(約195.8坪)

    1階は事務所の内装付き、2-4階は倉庫仕様です。

    貨物用リフトも残置物としてございますが、建築基準法に適合しておりません。

    賃料坪単価は中央区のこの立地では破格の3,652円!

    お問い合わせお待ちしております。

    06-7777-7421
    06-7777-7421
    受付 10:00〜18:00日曜日・祝日定休
    メールお問い合わせ
    メールお問い合わせ
    LINEお問い合わせ
    LINEお問い合わせ

    Page top

    Page top

    LINEで物件お問い合わせ

    「LINEお問い合わせ」ボタンを押すと、トーク画面が開きますので、以下のお問い合わせ番号をコピーして送信してください。
    お電話番号も一緒にお送り頂くとより迅速な対応が可能です。

    LINEお問い合わせ
    LINEお問い合わせ

    ※初回のみ、弊社を「友だちリスト」に追加してください。

    CLOSE