物件詳細
大阪メトロ中央線 『緑橋』駅 徒歩11分
【管理費】0円
東成区のペット飼育可能!(小型犬1匹)
店舗も事務所もOK!! 福祉事業も可能な最上階、ワンフロア一戸
大阪メトロ中央線 深江橋駅 徒歩11分
備考
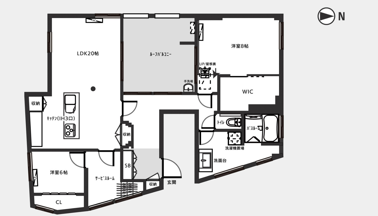
・エアコン3台付(残置物)
・ルーフバルコニー
・隠し部屋
・AL、EVなし
・ワンフロア一戸
・元オーナーズルーム
・事務所、福祉関係、店舗利用可能
その他
・水道代3,000円
・ハウスクリーニング代(税別、退去時)100,000円
・ペット飼育時(小型犬1匹)賃料2,000円UP
・短期解約違約金
1年未満の解約は総賃料の2ヶ月分
2年未満の解約は総賃料の1ヶ月分
お問い合わせお待ちしております!

