本町エリア 靭公園すぐのロケー... | 大阪で店舗・事務所・居抜き・オフィス・SOHOをお探しなら物件ハンターにお任せください!

Detail物件詳細
物件番号
25430
本町エリア 靭公園すぐのロケーション! 最上階ワンフロア貸し 約31.27坪
Loading
賃料
343,970円(税込)
共益費
68,794円(税込)
敷金 / 礼金
3ヶ月 / 1ヶ月
保証金
0
解約引
-
造作譲渡金
-
物件番号
25430

    物件詳細

    物件公開日
    2025年11月12日
    築年月
    1992年03月
    物件種別
    店舗・事務所
    所在地
    大阪府大阪市西区靱本町1丁目
    アクセス
    大阪メトロ四つ橋線 『本町』駅 徒歩4分
    大阪メトロ四つ橋線 『肥後橋』駅 徒歩9分
    坪単価
    【賃料】11,000円
    【管理費】2,200円
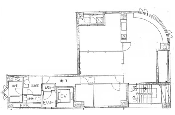
    坪数
    31.27坪 (103.37㎡)
    建物構造
    RC / 7階建 (所在階)7階
    現況
    空室
    引渡し時期
    即日
    取引態様
    仲介(媒介)
    備考
    #オフィス#美容関係#学校・スクール#ワンフロア

    本町エリア

    靭公園すぐのロケーション!

    7階建てビルの最上階ワンフロア貸し 約31.27坪

    現状:住居仕様

    借主にて解体後、事務所や店舗仕様に改装OK

    美容サロンやオフィス・スタジオ等にいかがでしょうか!

    お問い合わせお待ちしております。

    06-6786-8690
    06-6786-8690
    受付 10:00〜18:00日曜日・祝日定休
    メールお問い合わせ
    メールお問い合わせ
    LINEお問い合わせ
    LINEお問い合わせ

    Page top

    Page top

    LINEで物件お問い合わせ

    「LINEお問い合わせ」ボタンを押すと、トーク画面が開きますので、以下のお問い合わせ番号をコピーして送信してください。
    お電話番号も一緒にお送り頂くとより迅速な対応が可能です。

    LINEお問い合わせ
    LINEお問い合わせ

    ※初回のみ、弊社を「友だちリスト」に追加してください。

    CLOSE