物件詳細
大阪メトロ谷町線 『南森町』駅 徒歩2分
【管理費】3,850円
天神橋2丁目 事務所
JR東西線 大阪天満宮駅 徒歩1分
即時入居可能
天神ノ森を借景にある南森町のランドマークオフィス!
重厚感あるブラックが遠方からも目を引く外観。
丸みのある二重ドアから一歩入れば、高級感ある大理石のエントランスが広がります。
各フロアからは国道1号や大阪天満宮を眼下に、市街地をはるかに見渡せる開放的な風景も魅力の一つとなっています。
設 備
現況優先となります。
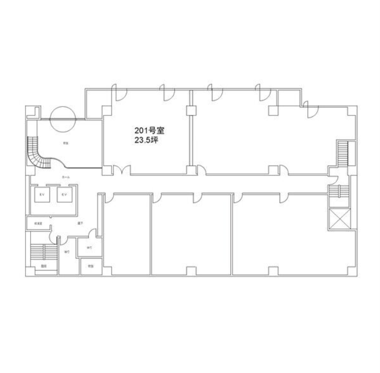
【位置】 角部屋
【冷暖房】 エアコン(冷暖房)
【放送・通信】 光ファイバー
【セキュリティ】 管理人(常駐)・防犯カメラ
【テナント設備】24時間利用
【その他】 エレベーター(2基)
特記事項:
webサービス広告掲載 [要確認]
・チラシ、雑誌等掲載広告 [要確認]
・専有部床清掃費用:1,100円/坪(税込)年2回実施
・ネームプレート作成費用:27,500円(税込/契約時)
郵便ポスト、テナント表示板、貸室ドアの3点セット
・電気料金:40円/Kwh(税込、基本料金なし)
・ガス料金:150円/㎡(税込、基本料金なし)
お問い合わせお待ちしております!

