北浜・堺筋本町間の超好立地物件... | 大阪で店舗・事務所・居抜き・オフィス・SOHOをお探しなら物件ハンターにお任せください!

Detail物件詳細
物件番号
25229
北浜・堺筋本町間の超好立地物件! 堺筋に面し視認性良好! 2026年4月末退去予定です。
Loading
賃料
330,000円(税込)
共益費
3,300円(税込)
敷金 / 礼金
5ヶ月 / 2ヶ月
保証金
0
解約引
-
造作譲渡金
-
物件番号
25229

    物件詳細

    物件公開日
    2025年11月08日
    築年月
    1977年12月
    物件種別
    店舗
    所在地
    大阪府大阪市中央区瓦町2丁目
    アクセス
    大阪メトロ堺筋線 『堺筋本町』駅 徒歩4分
    大阪メトロ堺筋線 『北浜』駅 徒歩5分
    坪単価
    【賃料】33,000円
    【管理費】330円
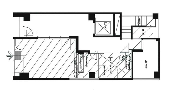
    坪数
    10坪 (33.06㎡)
    建物構造
    RC / 8階建 (所在階)1階
    現況
    賃貸中
    引渡し時期
    相談
    取引態様
    仲介(媒介)
    備考
    #一階路面#飲食関係#美容関係#物販関係#大通沿い#アパレル

    北浜駅・堺筋本町駅間の超好立地物件!

    1階路面店舗 約10坪

    堺筋に面し視認性良好!

    人通り多数です!

    現況:宝くじ売り場

    2026年4月末退去予定です。

    お問い合わせお待ちしております!

    06-7777-7421
    06-7777-7421
    受付 10:00〜18:00日曜日・祝日定休
    メールお問い合わせ
    メールお問い合わせ
    LINEお問い合わせ
    LINEお問い合わせ

    Page top

    Page top

    LINEで物件お問い合わせ

    「LINEお問い合わせ」ボタンを押すと、トーク画面が開きますので、以下のお問い合わせ番号をコピーして送信してください。
    お電話番号も一緒にお送り頂くとより迅速な対応が可能です。

    LINEお問い合わせ
    LINEお問い合わせ

    ※初回のみ、弊社を「友だちリスト」に追加してください。

    CLOSE