浪速区幸町 高さ約4.3m 千... | 大阪で店舗・事務所・居抜き・オフィス・SOHOをお探しなら物件ハンターにお任せください!

Detail物件詳細
物件番号
25101
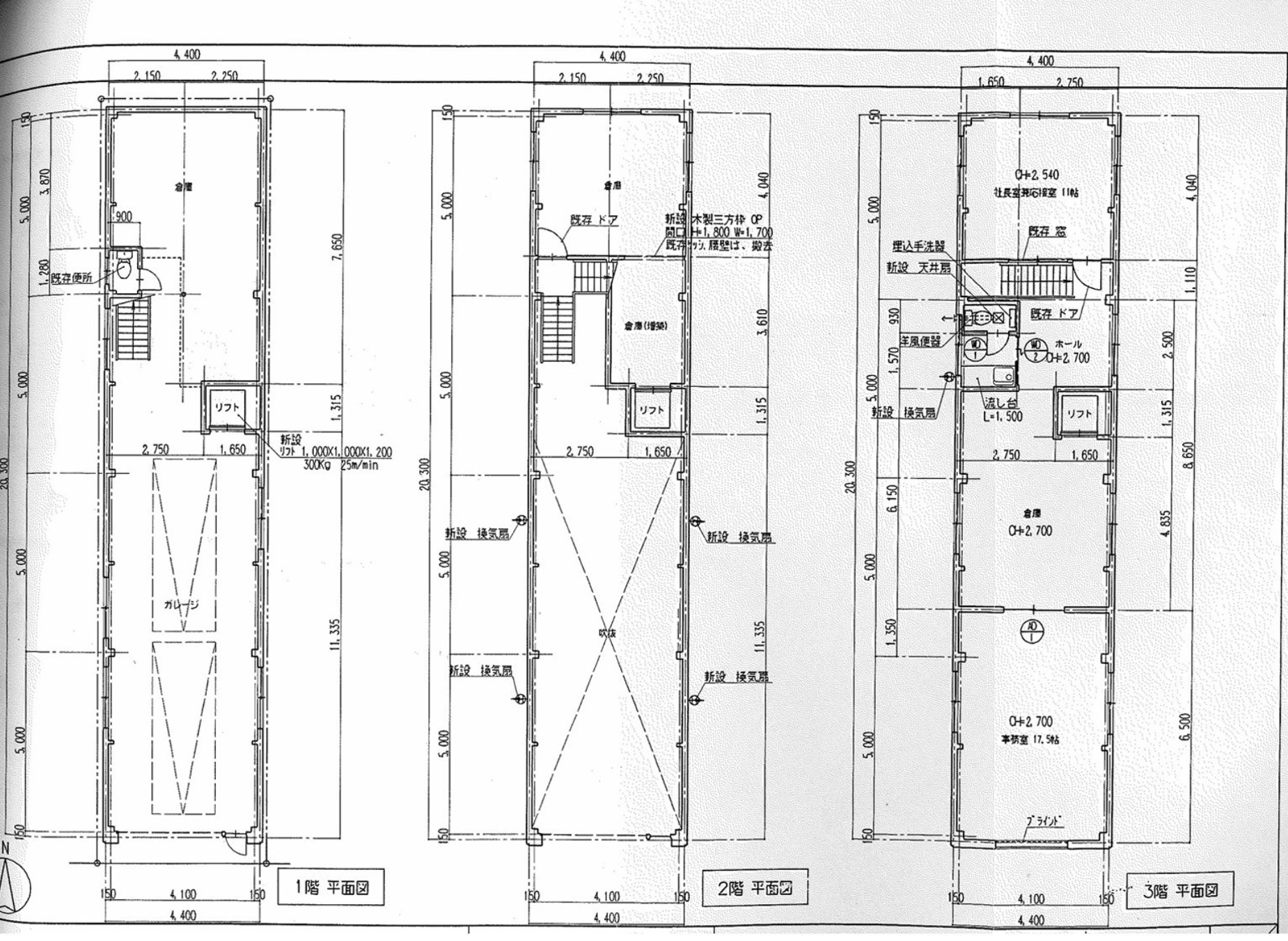
浪速区幸町 高さ約4.3m 千日前通り沿いの1棟貸しテナント 200.88m 約60.76坪
Loading
賃料
748,000円(税込)
共益費
0円(税込)
敷金 / 礼金
6ヶ月 / 0
保証金
0
解約引
3ヶ月
造作譲渡金
-
物件番号
25101

    物件詳細

    物件公開日
    2025年11月05日
    築年月
    1989年01月
    物件種別
    店舗・事務所
    所在地
    大阪府大阪市浪速区幸町3丁目
    アクセス
    阪神なんば線 『桜川』駅 徒歩2分
    大阪環状線 『大正』駅 徒歩6分
    坪単価
    【賃料】12,311円
    【管理費】0円
    坪数
    60.76坪 (200.88㎡)
    建物構造
    鉄骨造 / 3階建 1棟貸し
    現況
    空室
    引渡し時期
    即日
    取引態様
    仲介(媒介)
    備考
    #一階路面#オフィス#飲食関係#美容関係#物販関係#1棟貸し#大通沿い#アパレル#ペット関係#学校・スクール#レトロ物件#クリニック&医療向け#ショールーム#駐車場付き#大型ロードサイド

    大阪市浪速区幸町3丁目

    桜川駅歩いてすぐの好立地物件

    200.88m ・約60.76坪

    1F 91.52m ・約27.68坪

    2F 17.84m ・約5.4坪

    3F91.52m ・約27.68坪

    中々面白い1棟貸し物件

    使い方は無限大です!!

    06-6786-8690
    06-6786-8690
    受付 10:00〜18:00日曜日・祝日定休
    メールお問い合わせ
    メールお問い合わせ
    LINEお問い合わせ
    LINEお問い合わせ

    Page top

    Page top

    LINEで物件お問い合わせ

    「LINEお問い合わせ」ボタンを押すと、トーク画面が開きますので、以下のお問い合わせ番号をコピーして送信してください。
    お電話番号も一緒にお送り頂くとより迅速な対応が可能です。

    LINEお問い合わせ
    LINEお問い合わせ

    ※初回のみ、弊社を「友だちリスト」に追加してください。

    CLOSE