本町エリア 13階ワンフロア貸... | 大阪で店舗・事務所・居抜き・オフィス・SOHOをお探しなら物件ハンターにお任せください!

Detail物件詳細
物件番号
24978
本町エリア 13階ワンフロア貸し 約67坪 オフィス居抜き
Loading
賃料
773,619円(税込)
共益費
221,034円(税込)
敷金 / 礼金
5ヶ月 / 0
保証金
0
解約引
-
造作譲渡金
-
物件番号
24978

    物件詳細

    物件公開日
    2025年11月01日
    築年月
    2011年04月
    物件種別
    事務所
    所在地
    大阪府大阪市中央区久太郎町3丁目
    アクセス
    大阪メトロ御堂筋線 『本町』駅 徒歩4分
    大阪メトロ堺筋線 『堺筋本町』駅 徒歩4分
    坪単価
    【賃料】11,552円
    【管理費】3,300円
    坪数
    66.97坪 (221.39㎡)
    建物構造
    鉄骨造 / 14階建 (所在階)13階
    現況
    空室
    引渡し時期
    相談
    取引態様
    仲介(媒介)
    備考
    #オフィス#居抜き物件#眺望重視#ワンフロア

    本町エリア

    中央大通り1本南の通り沿い

    「本町駅」「堺筋本町駅」中間の好立地物件です!

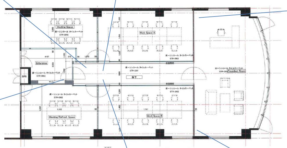
    14階建てのオフィスビル、13階区画ワンフロア貸し

    居抜き状態での引き渡しとなります。

    5部屋に分割されたレイアウトとなっており、

    会議室や応接室、執務室など空間を分けてお使いいただけます。

    お問い合わせお待ちしております!

    06-7777-7421
    06-7777-7421
    受付 10:00〜18:00日曜日・祝日定休
    メールお問い合わせ
    メールお問い合わせ
    LINEお問い合わせ
    LINEお問い合わせ

    Page top

    Page top

    LINEで物件お問い合わせ

    「LINEお問い合わせ」ボタンを押すと、トーク画面が開きますので、以下のお問い合わせ番号をコピーして送信してください。
    お電話番号も一緒にお送り頂くとより迅速な対応が可能です。

    LINEお問い合わせ
    LINEお問い合わせ

    ※初回のみ、弊社を「友だちリスト」に追加してください。

    CLOSE