2025年11月竣工予定 新築... | 大阪で店舗・事務所・居抜き・オフィス・SOHOをお探しなら物件ハンターにお任せください!

Detail物件詳細
物件番号
24770
2025年11月竣工予定 新築マンション1階店舗区画 約17.29坪
Loading
賃料
330,000円(税込)
共益費
33,000円(税込)
敷金 / 礼金
1ヶ月 / 2ヶ月
保証金
0
解約引
-
造作譲渡金
-
物件番号
24770

    物件詳細

    物件公開日
    2025年10月24日
    築年月
    2025年11月
    物件種別
    店舗
    所在地
    大阪府大阪市中央区久太郎町1丁目
    アクセス
    大阪メトロ中央線 『堺筋本町』駅 徒歩4分
    大阪メトロ谷町線 『谷町四丁目』駅 徒歩9分
    坪単価
    【賃料】19,086円
    【管理費】1,909円
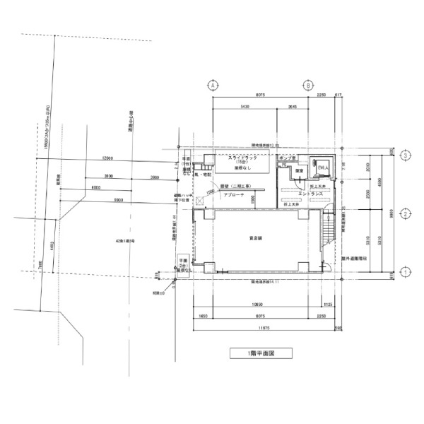
    坪数
    17.29坪 (57.19㎡)
    建物構造
    RC / 10階建 (所在階)1階
    現況
    未完成
    引渡し時期
    相談
    取引態様
    仲介(媒介)
    備考
    #一階路面#飲食関係#美容関係#物販関係#アパレル#学校・スクール#クリニック&医療向け#新築・築浅#ワンフロア

    2025年11月竣工予定

    新築マンションの1階店舗区画 約17.29坪

    引き渡し状態はスケルトン

    軽飲食店での利用も相談可。

    電気・ガス・給排水引込有。

    東横堀筋に面する立地で、

    道路向かいにはホテルとタワーマンションがございます。

    2025年12月13日より引き渡し可能です。

    お問い合わせお待ちしております。

    06-6786-8690
    06-6786-8690
    受付 10:00〜18:00日曜日・祝日定休
    メールお問い合わせ
    メールお問い合わせ
    LINEお問い合わせ
    LINEお問い合わせ

    Page top

    Page top

    LINEで物件お問い合わせ

    「LINEお問い合わせ」ボタンを押すと、トーク画面が開きますので、以下のお問い合わせ番号をコピーして送信してください。
    お電話番号も一緒にお送り頂くとより迅速な対応が可能です。

    LINEお問い合わせ
    LINEお問い合わせ

    ※初回のみ、弊社を「友だちリスト」に追加してください。

    CLOSE