アメ村エリア 2024年7月竣... | 大阪で店舗・事務所・居抜き・オフィス・SOHOをお探しなら物件ハンターにお任せください!

Detail物件詳細
物件番号
24716
アメ村エリア 2024年7月竣工の築浅ビル 5階区画 約18.66坪
Loading
賃料
495,000円(税込)
共益費
110,000円(税込)
敷金 / 礼金
5ヶ月 / 5ヶ月
保証金
0
解約引
-
造作譲渡金
-
物件番号
24716

    物件詳細

    物件公開日
    2025年10月23日
    築年月
    2024年07月
    物件種別
    店舗
    所在地
    大阪府大阪市中央区西心斎橋2丁目
    アクセス
    大阪メトロ御堂筋線 『心斎橋』駅 徒歩6分
    大阪メトロ御堂筋線 『なんば』駅 徒歩5分
    坪単価
    【賃料】26,527円
    【管理費】5,895円
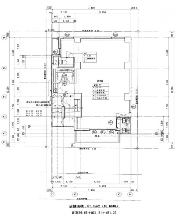
    坪数
    18.66坪 (61.69㎡)
    建物構造
    RC / 7階建 (所在階)5階
    現況
    空室
    引渡し時期
    即日
    取引態様
    仲介(媒介)
    備考
    #飲食関係#Bar&夜系#新築・築浅#ワンフロア

    西心斎橋2丁目 アメ村

    アメ村スクエア前の飲食メインエリア

    2024年7月竣工の築浅飲食ビルから募集中!

    5階区画ワンフロア貸し 約18.66坪

    引き渡し状態スケルトン

     

    共益費には下記の費用を含みます。

    ・自立袖突出看板

    ・ビル集合看板及びEV内表示板利用料

    ・SECOM警備代

    ・ごみステーション利用料

    ・水道メーター検針・維持費

    ・インターネット使用料

     

    業種は重飲食もOKです!

    お問い合わせお待ちしております。

    06-6786-8690
    06-6786-8690
    受付 10:00〜18:00日曜日・祝日定休
    メールお問い合わせ
    メールお問い合わせ
    LINEお問い合わせ
    LINEお問い合わせ

    Page top

    Page top

    LINEで物件お問い合わせ

    「LINEお問い合わせ」ボタンを押すと、トーク画面が開きますので、以下のお問い合わせ番号をコピーして送信してください。
    お電話番号も一緒にお送り頂くとより迅速な対応が可能です。

    LINEお問い合わせ
    LINEお問い合わせ

    ※初回のみ、弊社を「友だちリスト」に追加してください。

    CLOSE