西天満3丁目 1階路面事務所 ... | 大阪で店舗・事務所・居抜き・オフィス・SOHOをお探しなら物件ハンターにお任せください!

Detail物件詳細
物件番号
24603
西天満3丁目 1階路面事務所 給排水引込可 店舗利用もご相談ください
Loading
賃料
1,757,184円(税込)
共益費
0円(税込)
敷金 / 礼金
12ヶ月 / 0
保証金
0
解約引
-
造作譲渡金
-
物件番号
24603

    物件詳細

    物件公開日
    2025年10月18日
    築年月
    1989年04月
    物件種別
    店舗・事務所
    所在地
    大阪府大阪市北区西天満3丁目
    アクセス
    大阪メトロ堺筋線 『北浜』駅 徒歩5分
    大阪メトロ堺筋線 『南森町』駅 徒歩7分
    坪単価
    【賃料】17,600円
    【管理費】0円
    坪数
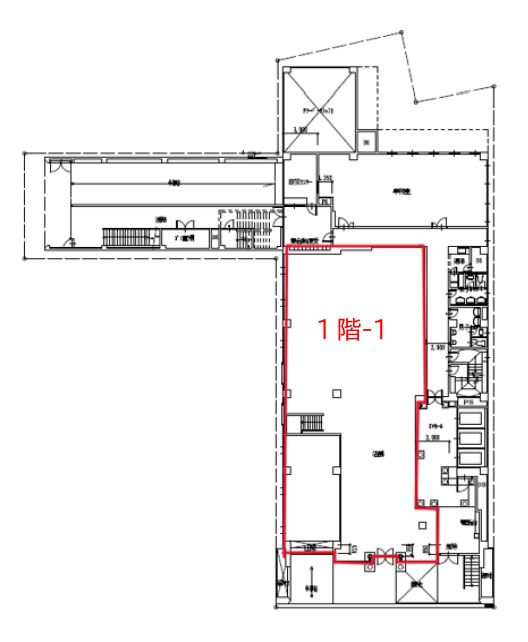
    99.84坪 (330.04㎡)
    建物構造
    鉄骨造 / 8階建 (所在階)1階
    現況
    賃貸中
    引渡し時期
    相談
    取引態様
    仲介(媒介)
    備考
    #一階路面#オフィス#美容関係#物販関係#アパレル#学校・スクール#クリニック&医療向け#ショールーム

    西天満3丁目

    「北浜駅」「南森町駅」間の立地

    8階建てオフィスビルの1階路面区画が募集中。

    2025年12月末解約予定。

    現況:事務所仕様

    共用部分にトイレ等あり

    区画内に給排水の引込も可能ですので、店舗利用もご相談ください。

    飲食店での利用はNGです。

    お問い合わせお待ちしております。

    06-6786-8690
    06-6786-8690
    受付 10:00〜18:00日曜日・祝日定休
    メールお問い合わせ
    メールお問い合わせ
    LINEお問い合わせ
    LINEお問い合わせ

    Page top

    Page top

    LINEで物件お問い合わせ

    「LINEお問い合わせ」ボタンを押すと、トーク画面が開きますので、以下のお問い合わせ番号をコピーして送信してください。
    お電話番号も一緒にお送り頂くとより迅速な対応が可能です。

    LINEお問い合わせ
    LINEお問い合わせ

    ※初回のみ、弊社を「友だちリスト」に追加してください。

    CLOSE