「江坂駅」徒歩3分 1階路面店... | 大阪で店舗・事務所・居抜き・オフィス・SOHOをお探しなら物件ハンターにお任せください!

Detail物件詳細
物件番号
24570
「江坂駅」徒歩3分 1階路面店舗 約101坪 現況:焼肉屋営業中
Loading
賃料
1,944,250円(税込)
共益費
277,750円(税込)
敷金 / 礼金
6ヶ月 / 1ヶ月
保証金
0
解約引
-
造作譲渡金
-
物件番号
24570

    物件詳細

    物件公開日
    2025年10月16日
    築年月
    1986年06月
    物件種別
    店舗
    所在地
    大阪府吹田市江坂町1丁目
    アクセス
    大阪メトロ御堂筋線 『江坂』駅 徒歩3分
    阪急千里線 『豊津』駅 徒歩18分
    坪単価
    【賃料】19,250円
    【管理費】2,750円
    坪数
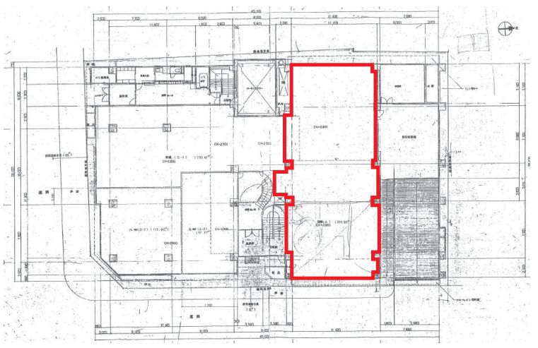
    101坪 (333.88㎡)
    建物構造
    RC / 9階建 (所在階)1階
    現況
    賃貸中
    引渡し時期
    相談
    取引態様
    仲介(媒介)
    備考
    #一階路面#飲食関係#美容関係#居抜き物件#物販関係#アパレル#学校・スクール#クリニック&医療向け#ショールーム

    「江坂駅」徒歩3分

    江坂公園からもすぐの立地!

    1階路面店舗 約101坪

    現況:焼肉屋営業中

    基本的にはスケルトンでの引き渡し予定ですが、

    居抜きでのご相談も可能です。

    業種は重飲食もOK!

    お問い合わせお待ちしております。

    06-6786-8690
    06-6786-8690
    受付 10:00〜18:00日曜日・祝日定休
    メールお問い合わせ
    メールお問い合わせ
    LINEお問い合わせ
    LINEお問い合わせ

    Page top

    Page top

    LINEで物件お問い合わせ

    「LINEお問い合わせ」ボタンを押すと、トーク画面が開きますので、以下のお問い合わせ番号をコピーして送信してください。
    お電話番号も一緒にお送り頂くとより迅速な対応が可能です。

    LINEお問い合わせ
    LINEお問い合わせ

    ※初回のみ、弊社を「友だちリスト」に追加してください。

    CLOSE