希少!ダンススタジオ居抜き物件... | 大阪で店舗・事務所・居抜き・オフィス・SOHOをお探しなら物件ハンターにお任せください!

Detail物件詳細
物件番号
24499
希少!ダンススタジオ居抜き物件! 大国町 四ツ橋筋沿い 2階ワンフロア 約65坪
Loading
賃料
487,500円(税込)
共益費
32,500円(税込)
敷金 / 礼金
520,000円 / 1,040,000円(税込)
保証金
0
解約引
-
造作譲渡金
-
物件番号
24499

    物件詳細

    物件公開日
    2025年10月09日
    築年月
    1998年11月
    物件種別
    店舗・事務所
    所在地
    大阪府大阪市浪速区大国1丁目
    アクセス
    大阪メトロ四つ橋線 『大国町』駅 徒歩4分
    大阪メトロ御堂筋線 『大国町』駅 徒歩6分
    坪単価
    【賃料】7,500円
    【管理費】500円
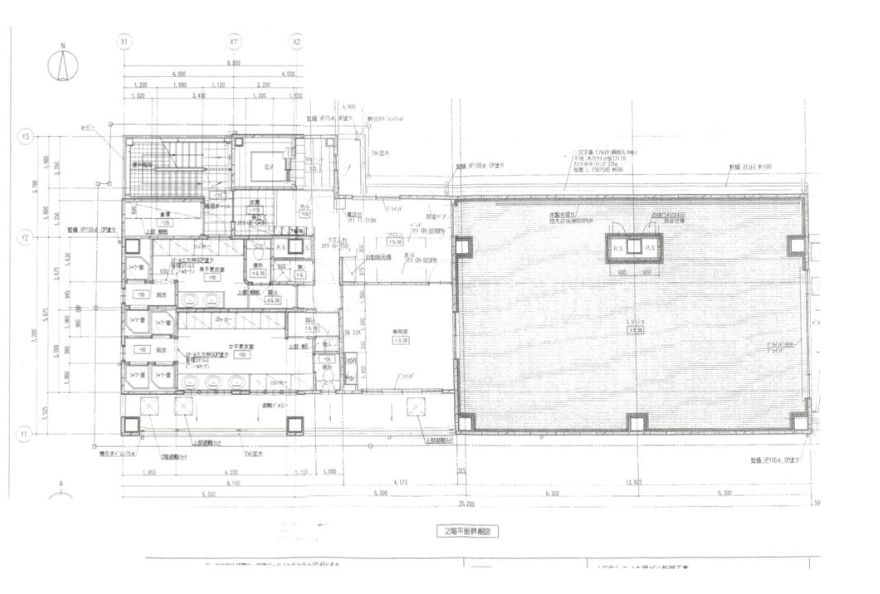
    坪数
    65坪 (214.44㎡)
    建物構造
    鉄骨造 / 10階建 (所在階)2階
    現況
    空室
    引渡し時期
    即日
    取引態様
    仲介(媒介)
    備考
    #オフィス#美容関係#居抜き物件#大通沿い#学校・スクール#クリニック&医療向け#2階限定#ショールーム#ワンフロア

    「大国町駅」徒歩4分

    四ツ橋筋に面するマンション2階部分

    ワンフロア貸し約65坪

    現状:ダンススタジオ居抜き

    男女更衣室・シャワーブース5室・事務室・応接スペース

    上階がマンションとなるため、

    ダンススタジオでも振動や騒音が激しいジャンルはNGとなっております。

    駅からも通いやすく、前面道路が広いため車送迎もしやすい建物です!

    スタジオ・教室等の業種におすすめ!

    お問い合わせお待ちしております。

    06-6786-8690
    06-6786-8690
    受付 10:00〜18:00日曜日・祝日定休
    メールお問い合わせ
    メールお問い合わせ
    LINEお問い合わせ
    LINEお問い合わせ

    Page top

    Page top

    LINEで物件お問い合わせ

    「LINEお問い合わせ」ボタンを押すと、トーク画面が開きますので、以下のお問い合わせ番号をコピーして送信してください。
    お電話番号も一緒にお送り頂くとより迅速な対応が可能です。

    LINEお問い合わせ
    LINEお問い合わせ

    ※初回のみ、弊社を「友だちリスト」に追加してください。

    CLOSE