御堂筋に面する なんば駅前の超... | 大阪で店舗・事務所・居抜き・オフィス・SOHOをお探しなら物件ハンターにお任せください!

Detail物件詳細
物件番号
24486
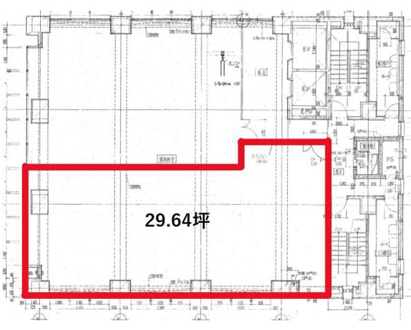
御堂筋に面する なんば駅前の超好立地物件 8階区画 店舗・事務所 約29.64坪
Loading
賃料
847,704円(税込)
共益費
0円(税込)
敷金 / 礼金
8ヶ月 / 0
保証金
0
解約引
1ヶ月
造作譲渡金
-
物件番号
24486

    物件詳細

    物件公開日
    2025年10月09日
    築年月
    1983年11月
    物件種別
    店舗・事務所
    所在地
    大阪府大阪市中央区難波3丁目
    アクセス
    大阪メトロ千日前線 『なんば』駅 徒歩1分
    大阪メトロ御堂筋線 『なんば』駅 徒歩1分
    坪単価
    【賃料】28,600円
    【管理費】0円
    坪数
    29.64坪 (98㎡)
    建物構造
    SRC / 11階建 (所在階)8階
    現況
    賃貸中
    引渡し時期
    即日
    取引態様
    仲介(媒介)
    備考
    #一等地#オフィス#美容関係#物販関係#大通沿い#アパレル#学校・スクール#クリニック&医療向け#ショールーム#ワンフロア

    なんばマルイ真横、なんば駅すぐの利便性良好な好立地物件!

    御堂筋に面し視認性も良好です!

    11階建てビルの8階区画 約29.64坪

    現況:スーツ屋

    居抜きでの引き渡しもご相談可能です。

    賃料坪単価は26,000円(税別)

    お問い合わせお待ちしております!

    06-6786-8690
    06-6786-8690
    受付 10:00〜18:00日曜日・祝日定休
    メールお問い合わせ
    メールお問い合わせ
    LINEお問い合わせ
    LINEお問い合わせ

    Page top

    Page top

    LINEで物件お問い合わせ

    「LINEお問い合わせ」ボタンを押すと、トーク画面が開きますので、以下のお問い合わせ番号をコピーして送信してください。
    お電話番号も一緒にお送り頂くとより迅速な対応が可能です。

    LINEお問い合わせ
    LINEお問い合わせ

    ※初回のみ、弊社を「友だちリスト」に追加してください。

    CLOSE