本町駅すぐ 2024年1月竣工... | 大阪で店舗・事務所・居抜き・オフィス・SOHOをお探しなら物件ハンターにお任せください!

Detail物件詳細
物件番号
24437
本町駅すぐ 2024年1月竣工の築浅テナントビル 7階区画 事務所&店舗利用可能!
Loading
賃料
198,055円(税込)
共益費
30,470円(税込)
敷金 / 礼金
0円 / 3ヶ月
保証金
3ヶ月
解約引
-
造作譲渡金
-
物件番号
24437

    物件詳細

    物件公開日
    2025年10月07日
    築年月
    2024年01月
    物件種別
    店舗・事務所
    所在地
    大阪府大阪市中央区久太郎町3丁目
    アクセス
    大阪メトロ御堂筋線 『本町』駅 徒歩1分
    大阪メトロ中央線 『本町』駅 徒歩1分
    坪単価
    【賃料】14,300円
    【管理費】2,200円
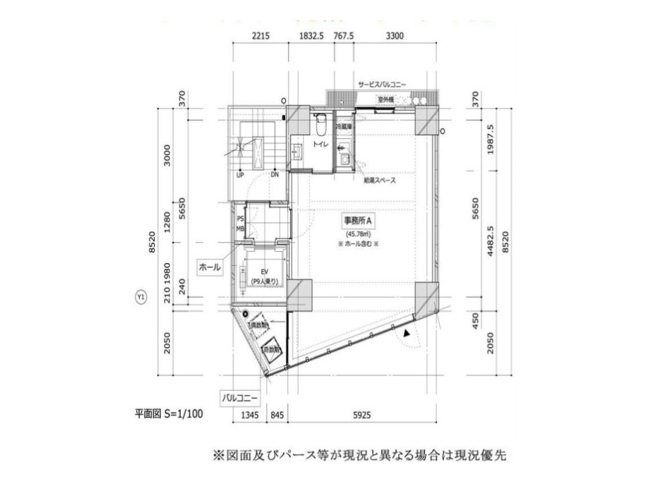
    坪数
    13.85坪 (45.78㎡)
    建物構造
    鉄骨造 / 10階建 (所在階)7階
    現況
    賃貸中
    引渡し時期
    相談
    取引態様
    仲介(媒介)
    備考
    #オフィス#デザイナーズ#美容関係#学校・スクール#クリニック&医療向け#新築・築浅#ワンフロア

    「本町駅」徒歩1分

    2024年1月竣工の築浅テナントビル

    7階事務所仕様区画 約13.85坪

    床・壁・天井・エアコン・トイレ・キッチン完備

    コンクリート打ちっ放しのおしゃれな内装です。

    事務所利用はもちろん美容関係の店舗利用にもおすすめです。

    お問い合わせお待ちしております。

    06-7777-7421
    06-7777-7421
    受付 10:00〜18:00日曜日・祝日定休
    メールお問い合わせ
    メールお問い合わせ
    LINEお問い合わせ
    LINEお問い合わせ

    Page top

    Page top

    LINEで物件お問い合わせ

    「LINEお問い合わせ」ボタンを押すと、トーク画面が開きますので、以下のお問い合わせ番号をコピーして送信してください。
    お電話番号も一緒にお送り頂くとより迅速な対応が可能です。

    LINEお問い合わせ
    LINEお問い合わせ

    ※初回のみ、弊社を「友だちリスト」に追加してください。

    CLOSE