【セットアップオフィス】天満橋... | 大阪で店舗・事務所・居抜き・オフィス・SOHOをお探しなら物件ハンターにお任せください!

Detail物件詳細
物件番号
24421
【セットアップオフィス】天満橋エリア 新築ビル 3階区画 42.08坪
Loading
賃料
810,040円(税込)
共益費
115,720円(税込)
敷金 / 礼金
ASK / 0
保証金
0
解約引
-
造作譲渡金
-
物件番号
24421

    物件詳細

    物件公開日
    2025年10月06日
    築年月
    2025年01月
    物件種別
    店舗・事務所
    所在地
    大阪府大阪市中央区北浜東
    アクセス
    大阪メトロ谷町線 『天満橋』駅 徒歩3分
    大阪メトロ堺筋線 『北浜』駅 徒歩8分
    坪単価
    【賃料】19,250円
    【管理費】2,750円
    坪数
    42.08坪 (139.11㎡)
    建物構造
    鉄骨造 / 11階建 (所在階)3階
    現況
    空室
    引渡し時期
    相談
    取引態様
    仲介(媒介)
    備考
    #オフィス#デザイナーズ#美容関係#大通沿い#学校・スクール#クリニック&医療向け#新築・築浅#ワンフロア

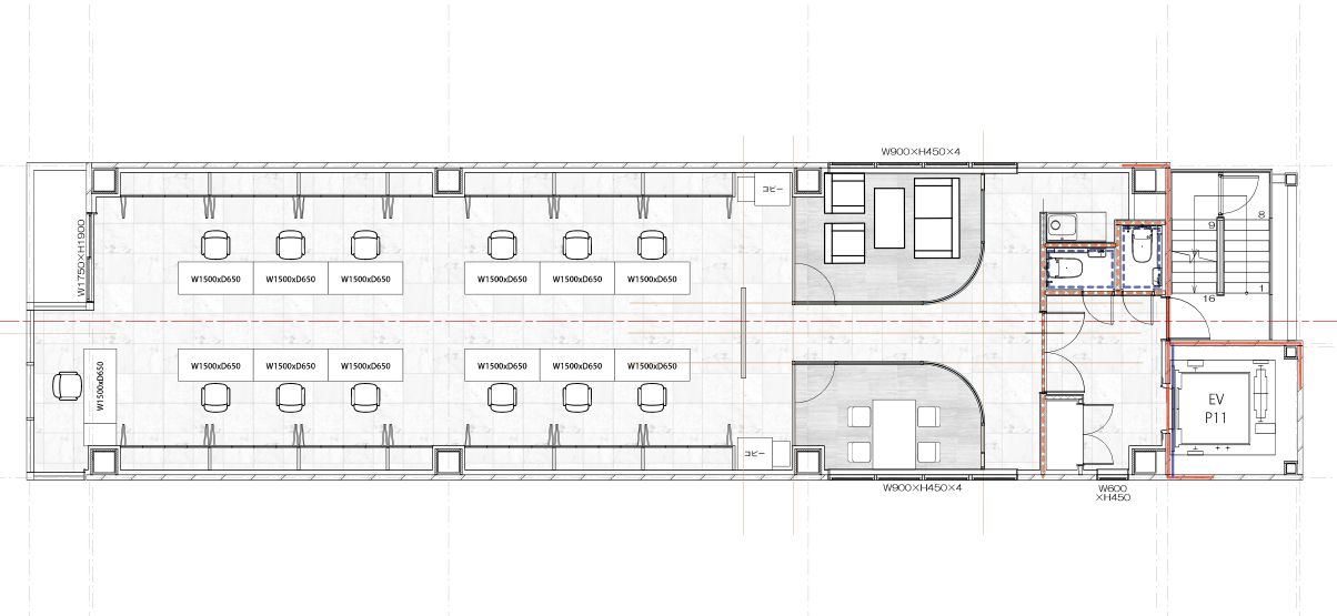
    天満橋エリア

    2025年1月竣工の新築テナントビル

    3階区画ワンフロア貸し 約42.08坪

    セットアップオフィス仕様での引き渡し。

    賃料+共益費坪単価:20,000円(税別)

    通常の事務所仕様での引き渡しもOK。

    クリニック、サロン、ジム等店舗利用もご相談可能です!

    お問い合わせお待ちしております。

    06-6786-8690
    06-6786-8690
    受付 10:00〜18:00日曜日・祝日定休
    メールお問い合わせ
    メールお問い合わせ
    LINEお問い合わせ
    LINEお問い合わせ

    Page top

    Page top

    LINEで物件お問い合わせ

    「LINEお問い合わせ」ボタンを押すと、トーク画面が開きますので、以下のお問い合わせ番号をコピーして送信してください。
    お電話番号も一緒にお送り頂くとより迅速な対応が可能です。

    LINEお問い合わせ
    LINEお問い合わせ

    ※初回のみ、弊社を「友だちリスト」に追加してください。

    CLOSE