令和8年4月竣工予定 新築レジ... | 大阪で店舗・事務所・居抜き・オフィス・SOHOをお探しなら物件ハンターにお任せください!

Detail物件詳細
物件番号
24377
令和8年4月竣工予定 新築レジデンスホテル地下1階店舗区画 約38.44坪
Loading
賃料
550,000円(税込)
共益費
0円(税込)
敷金 / 礼金
6ヶ月 / 2ヶ月
保証金
0
解約引
-
造作譲渡金
-
物件番号
24377

    物件詳細

    物件公開日
    2025年10月04日
    築年月
    2026年04月
    物件種別
    店舗
    所在地
    大阪府大阪市北区天神橋1丁目
    アクセス
    大阪メトロ谷町線 『南森町』駅 徒歩5分
    JR東西線 『大阪天満宮』駅 徒歩5分
    坪単価
    【賃料】14,308円
    【管理費】0円
    坪数
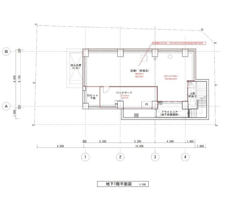
    38.44坪 (127.08㎡)
    建物構造
    RC / 11階建 (所在階)地下1階
    現況
    未完成
    引渡し時期
    相談
    取引態様
    仲介(媒介)
    備考
    #デザイナーズ#飲食関係#美容関係#物販関係#アパレル#学校・スクール#商店街#ショールーム#新築・築浅

    令和8年4月竣工予定

    新築レジデンスホテルの地下1階店舗区画 約38.44坪

    天神橋筋商店街入口の角地に位置し視認性良好!

    周辺居住者、観光客、インバウンド客まで人通り多数!

    1階及び地下1階は店舗として募集。

    2-11階の全居室はレジデンスホテル営業予定です。

    重飲食店舗はNG

    お問い合わせお待ちしております!

    06-7777-7421
    06-7777-7421
    受付 10:00〜18:00日曜日・祝日定休
    メールお問い合わせ
    メールお問い合わせ
    LINEお問い合わせ
    LINEお問い合わせ

    Page top

    Page top

    LINEで物件お問い合わせ

    「LINEお問い合わせ」ボタンを押すと、トーク画面が開きますので、以下のお問い合わせ番号をコピーして送信してください。
    お電話番号も一緒にお送り頂くとより迅速な対応が可能です。

    LINEお問い合わせ
    LINEお問い合わせ

    ※初回のみ、弊社を「友だちリスト」に追加してください。

    CLOSE