「阿波座駅」徒歩2分 1階路面... | 大阪で店舗・事務所・居抜き・オフィス・SOHOをお探しなら物件ハンターにお任せください!

Detail物件詳細
物件番号
24282
「阿波座駅」徒歩2分 1階路面店舗・事務所 約18坪 前面平面駐車場付き
Loading
賃料
286,000円(税込)
共益費
0円(税込)
敷金 / 礼金
2ヶ月 / 1ヶ月
保証金
0
解約引
-
造作譲渡金
-
物件番号
24282

    物件詳細

    物件公開日
    2025年09月27日
    築年月
    1989年04月
    物件種別
    店舗・事務所
    所在地
    大阪府大阪市西区立売堀4丁目
    アクセス
    大阪メトロ中央線 『阿波座』駅 徒歩2分
    大阪メトロ千日前線 『西長堀』駅 徒歩8分
    坪単価
    【賃料】15,889円
    【管理費】0円
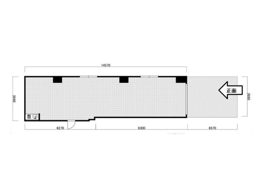
    坪数
    18坪 (59.4㎡)
    建物構造
    ALC / 10階建 (所在階)1階
    現況
    空室
    引渡し時期
    相談
    取引態様
    仲介(媒介)
    備考
    #一階路面#オフィス#美容関係#物販関係#アパレル#学校・スクール#ショールーム#駐車場付き

    「阿波座駅」徒歩2分

    1階路面店舗・事務所 約18坪

    専有区画前面に平面駐車スペース付き

    現状での引き渡し。

    共用部にトイレがございます。

    お問い合わせお待ちしております。

    06-6786-8690
    06-6786-8690
    受付 10:00〜18:00日曜日・祝日定休
    メールお問い合わせ
    メールお問い合わせ
    LINEお問い合わせ
    LINEお問い合わせ

    Page top

    Page top

    LINEで物件お問い合わせ

    「LINEお問い合わせ」ボタンを押すと、トーク画面が開きますので、以下のお問い合わせ番号をコピーして送信してください。
    お電話番号も一緒にお送り頂くとより迅速な対応が可能です。

    LINEお問い合わせ
    LINEお問い合わせ

    ※初回のみ、弊社を「友だちリスト」に追加してください。

    CLOSE