「西大橋駅」徒歩3分 3階ワン... | 大阪で店舗・事務所・居抜き・オフィス・SOHOをお探しなら物件ハンターにお任せください!

Detail物件詳細
物件番号
24276
「西大橋駅」徒歩3分 3階ワンフロア貸し店舗 現状住居仕様 スケルトン渡し相談可!
Loading
賃料
264,000円(税込)
共益費
11,000円(税込)
敷金 / 礼金
275,000円 / 550,000円(税込)
保証金
0
解約引
-
造作譲渡金
-
物件番号
24276

    物件詳細

    物件公開日
    2025年09月27日
    築年月
    1978年11月
    物件種別
    店舗・事務所
    所在地
    大阪府大阪市西区北堀江2丁目
    アクセス
    大阪メトロ長堀鶴見緑地線 『西大橋』駅 徒歩3分
    大阪メトロ四つ橋線 『四ツ橋』駅 徒歩6分
    坪単価
    【賃料】6,689円
    【管理費】279円
    坪数
    39.47坪 (130.48㎡)
    建物構造
    鉄骨造 / 3階建 (所在階)3階
    現況
    賃貸中
    引渡し時期
    相談
    取引態様
    仲介(媒介)
    備考
    #オフィス#飲食関係#美容関係#アパレル#ペット関係#学校・スクール#ショールーム#ワンフロア

    北堀江2丁目

    「西大橋駅」徒歩3分

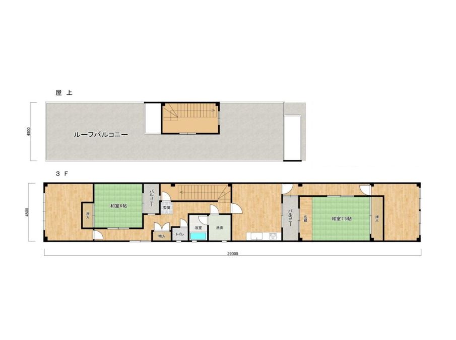
    3階ワンフロア貸し店舗 約39.47坪

    別途屋上ルーフバルコニー使用可!

    現状住居仕様 10月末退去予定です。

    スケルトン渡しも相談可能!

    1階サモエドカフェ 2階美容室 営業中

    お問い合わせお待ちしております!

    06-6786-8690
    06-6786-8690
    受付 10:00〜18:00日曜日・祝日定休
    メールお問い合わせ
    メールお問い合わせ
    LINEお問い合わせ
    LINEお問い合わせ

    Page top

    Page top

    LINEで物件お問い合わせ

    「LINEお問い合わせ」ボタンを押すと、トーク画面が開きますので、以下のお問い合わせ番号をコピーして送信してください。
    お電話番号も一緒にお送り頂くとより迅速な対応が可能です。

    LINEお問い合わせ
    LINEお問い合わせ

    ※初回のみ、弊社を「友だちリスト」に追加してください。

    CLOSE