玉造エリア 1階路面飲食店居抜... | 大阪で店舗・事務所・居抜き・オフィス・SOHOをお探しなら物件ハンターにお任せください!

Detail物件詳細
物件番号
24225
玉造エリア 1階路面飲食店居抜き店舗 約7.26坪 重飲食店可!
Loading
賃料
209,000円(税込)
共益費
22,000円(税込)
敷金 / 礼金
0円 / 3ヶ月
保証金
6ヶ月
解約引
-
造作譲渡金
1,950,000
物件番号
24225

    物件詳細

    物件公開日
    2025年09月24日
    築年月
    築不詳
    物件種別
    店舗
    所在地
    大阪府大阪市天王寺区玉造元町
    アクセス
    大阪環状線 『玉造』駅 徒歩1分
    大阪メトロ長堀鶴見緑地線 『玉造』駅 徒歩1分
    坪単価
    【賃料】28,788円
    【管理費】3,030円
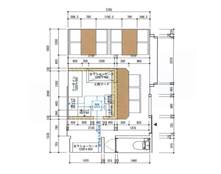
    坪数
    7.26坪 (24㎡)
    建物構造
    木造 / 1階建 (所在階)1階
    現況
    空室
    引渡し時期
    相談
    取引態様
    仲介(媒介)
    備考
    #一階路面#飲食関係#Bar&夜系

    「玉造駅」徒歩1分!

    幸村ロード沿いの1階路面店舗 約7.26坪

    前:鍋料理屋

    居抜き状態での引き渡しとなります。

    業種は焼肉等の重飲食店も相談可。

    立ち飲み居酒屋に最適なサイズ感です。

    お問い合わせお待ちしております。

    06-6786-8690
    06-6786-8690
    受付 10:00〜18:00日曜日・祝日定休
    メールお問い合わせ
    メールお問い合わせ
    LINEお問い合わせ
    LINEお問い合わせ

    Page top

    Page top

    LINEで物件お問い合わせ

    「LINEお問い合わせ」ボタンを押すと、トーク画面が開きますので、以下のお問い合わせ番号をコピーして送信してください。
    お電話番号も一緒にお送り頂くとより迅速な対応が可能です。

    LINEお問い合わせ
    LINEお問い合わせ

    ※初回のみ、弊社を「友だちリスト」に追加してください。

    CLOSE