2025年9月竣工の新築物件 ... | 大阪で店舗・事務所・居抜き・オフィス・SOHOをお探しなら物件ハンターにお任せください!

Detail物件詳細
物件番号
24206
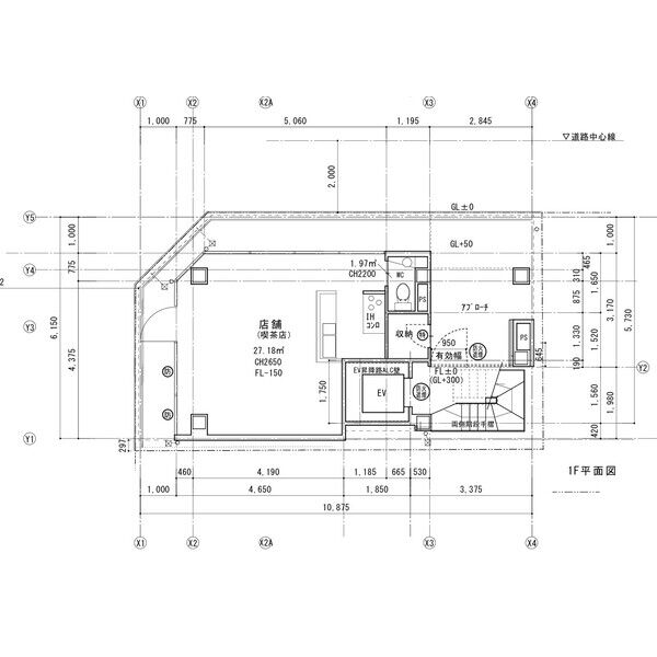
2025年9月竣工の新築物件 1階路面店舗区画 約8.22坪
Loading
賃料
132,000円(税込)
共益費
22,000円(税込)
敷金 / 礼金
2ヶ月 / 3ヶ月
保証金
0
解約引
-
造作譲渡金
-
物件番号
24206

    物件詳細

    物件公開日
    2025年09月23日
    築年月
    2025年09月
    物件種別
    店舗
    所在地
    大阪府大阪市西区本田2丁目
    アクセス
    大阪メトロ中央線 『九条』駅 徒歩7分
    大阪メトロ長堀鶴見緑地線 『ドーム前千代崎』駅 徒歩12分
    坪単価
    【賃料】16,058円
    【管理費】2,676円
    坪数
    8.22坪 (27.18㎡)
    建物構造
    鉄骨造 / 5階建 (所在階)1階
    現況
    空室
    引渡し時期
    即日
    取引態様
    仲介(媒介)
    備考
    #一階路面#飲食関係#美容関係#物販関係#アパレル#学校・スクール#ショールーム#新築・築浅#ワンフロア

    西区本田2丁目

    2025年9月竣工の新築物件

    1階路面店舗区画 約8.22坪

    角地&前面ガラス張りで視認性良好!

    引き渡し状態はスケルトン。

    ※周辺に遊郭のあるエリアです。

    お問い合わせお待ちしております。

    06-7777-7421
    06-7777-7421
    受付 10:00〜18:00日曜日・祝日定休
    メールお問い合わせ
    メールお問い合わせ
    LINEお問い合わせ
    LINEお問い合わせ

    Page top

    Page top

    LINEで物件お問い合わせ

    「LINEお問い合わせ」ボタンを押すと、トーク画面が開きますので、以下のお問い合わせ番号をコピーして送信してください。
    お電話番号も一緒にお送り頂くとより迅速な対応が可能です。

    LINEお問い合わせ
    LINEお問い合わせ

    ※初回のみ、弊社を「友だちリスト」に追加してください。

    CLOSE