【SOHO】「天満橋駅」徒歩7... | 大阪で店舗・事務所・居抜き・オフィス・SOHOをお探しなら物件ハンターにお任せください!

Detail物件詳細
物件番号
24111
【SOHO】「天満橋駅」徒歩7分 住居兼店舗利用におすすめ物件! 3SLDK+WIC+SIC
Loading
賃料
330,000円(税込)
共益費
5,500円(税込)
敷金 / 礼金
0円 / 1ヶ月
保証金
0
解約引
-
造作譲渡金
-
物件番号
24111

    物件詳細

    物件公開日
    2025年09月19日
    築年月
    1985年05月
    物件種別
    店舗・事務所・SOHO
    所在地
    大阪府大阪市中央区内平野町2丁目
    アクセス
    大阪メトロ谷町線 『天満橋』駅 徒歩7分
    大阪メトロ堺筋線 『北浜』駅 徒歩11分
    坪単価
    【賃料】5,331円
    【管理費】89円
    坪数
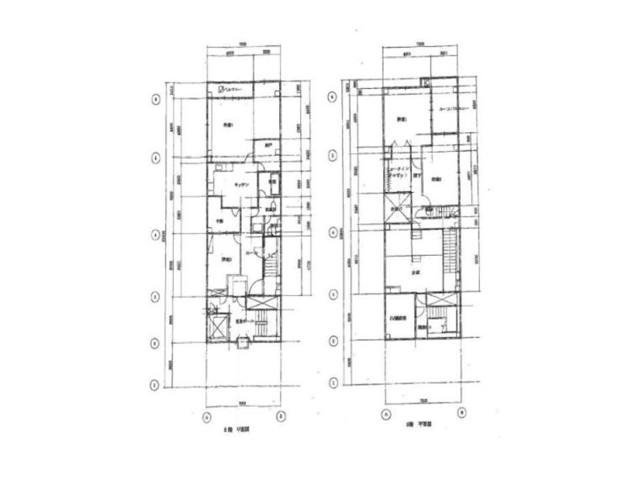
    61.9坪 (204.64㎡)
    建物構造
    鉄骨造 / 9階建 (所在階)8階/9階
    現況
    空室
    引渡し時期
    相談
    取引態様
    仲介(媒介)
    備考
    #オフィス#美容関係#SOHO(住居兼テナント・オフィス)

    「天満橋駅」徒歩7分

    ビル最上階8・9階メゾネット仕様のオーナーズルーム

    204.64㎡(約61.9坪)+屋上バルコニー付き

    間取りは3SLDK+WIC+SIC

    2023年に前面リフォーム済みで

    床暖房や食洗器、キッチンや水回りもピカピカです!

    不特定多数の来店がある業種はNGですが、

    サロン等予約制の業種はOKです!

    かなり広いので住居兼用での利用におすすめです!

    お問い合わせお待ちしております。

    06-7777-7421
    06-7777-7421
    受付 10:00〜18:00日曜日・祝日定休
    メールお問い合わせ
    メールお問い合わせ
    LINEお問い合わせ
    LINEお問い合わせ

    Page top

    Page top

    LINEで物件お問い合わせ

    「LINEお問い合わせ」ボタンを押すと、トーク画面が開きますので、以下のお問い合わせ番号をコピーして送信してください。
    お電話番号も一緒にお送り頂くとより迅速な対応が可能です。

    LINEお問い合わせ
    LINEお問い合わせ

    ※初回のみ、弊社を「友だちリスト」に追加してください。

    CLOSE