瓦屋町2丁目 1階シャッター付... | 大阪で店舗・事務所・居抜き・オフィス・SOHOをお探しなら物件ハンターにお任せください!

Detail物件詳細
物件番号
22770
瓦屋町2丁目 1階シャッター付きガレージ+2階事務所セット貸し 専用エレベーター有
Loading
賃料
880,000円(税込)
共益費
0円(税込)
敷金 / 礼金
0円 / 0
保証金
3ヶ月
解約引
-
造作譲渡金
-
物件番号
22770

    物件詳細

    物件公開日
    2025年07月21日
    築年月
    1989年08月
    物件種別
    店舗・事務所
    所在地
    大阪府大阪市中央区瓦屋町2丁目
    アクセス
    大阪メトロ長堀鶴見緑地線 『谷町六丁目』駅 徒歩8分
    大阪メトロ長堀鶴見緑地線 『松屋町』駅 徒歩8分
    坪単価
    【賃料】12,999円
    【管理費】0円
    坪数
    67.7坪 (223.93㎡)
    建物構造
    RC / 6階建 (所在階)1階/2階
    現況
    空室
    引渡し時期
    相談
    取引態様
    仲介(媒介)
    備考
    #一階路面#オフィス#美容関係#物販関係#アパレル#リノベーション#学校・スクール#2階限定#ショールーム

    瓦屋町2丁目

    平成元年竣工の6階建てオフィスビル

    内外装リノベーション工事中

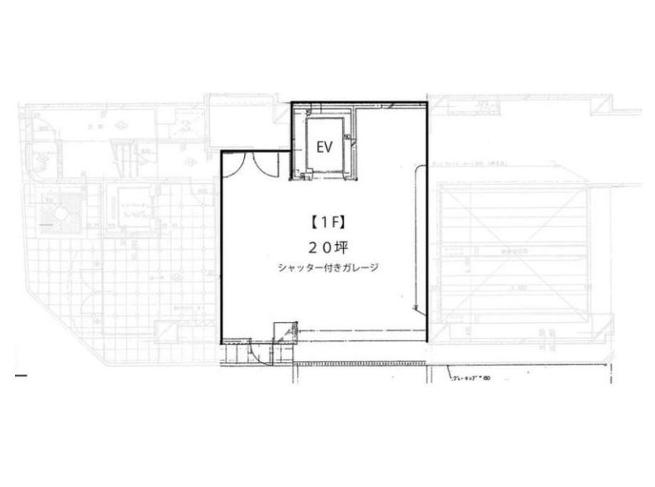
    1階シャッター付きガレージ(約20坪)

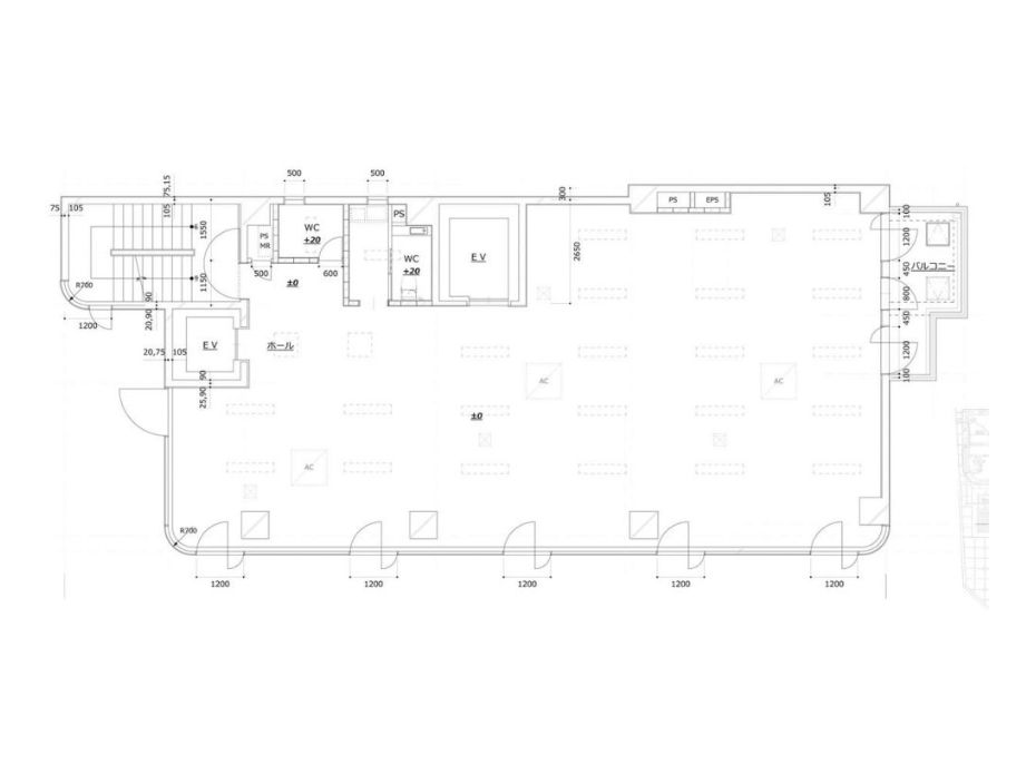
    2階ワンフロア事務所(約47.7坪)セット貸しでの募集です。

    1階ガレージ内から2階への専用エレベーター付き

    まずは使用用途ご相談ください!

    06-7777-7421
    06-7777-7421
    受付 10:00〜18:00日曜日・祝日定休
    メールお問い合わせ
    メールお問い合わせ
    LINEお問い合わせ
    LINEお問い合わせ

    Page top

    Page top

    LINEで物件お問い合わせ

    「LINEお問い合わせ」ボタンを押すと、トーク画面が開きますので、以下のお問い合わせ番号をコピーして送信してください。
    お電話番号も一緒にお送り頂くとより迅速な対応が可能です。

    LINEお問い合わせ
    LINEお問い合わせ

    ※初回のみ、弊社を「友だちリスト」に追加してください。

    CLOSE